×
| 住所 | 埼玉県久喜市本町6 |
|---|---|
| 交通 | 宇都宮線久喜駅まで 徒歩20分 |
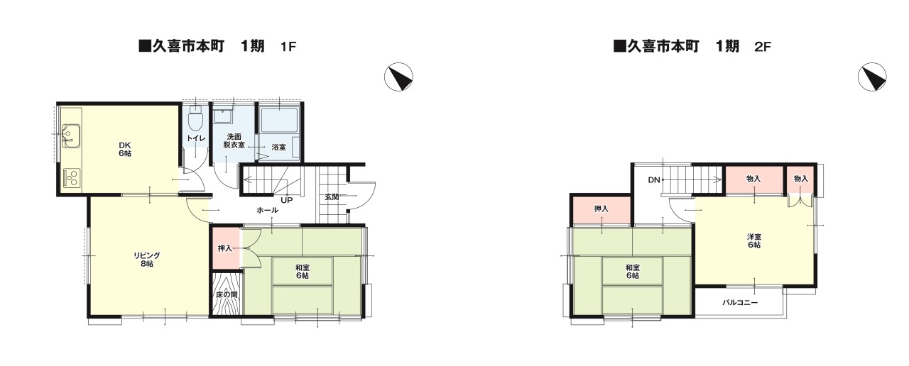
| 間取 | 4DK |
| 建物 |
78.63㎡ |
| 土地 |
124.88㎡ |
| 築年月 | 1983年06月築 |
2階建て
都市ガス
浴室乾燥機
スーパー徒歩
10分以内
システム
キッチン
小学校徒歩
10分以内
はなまるハウス株式会社加須営業所スタッフおすすめポイント
間取

間取り図
リビング・ダイニング

◆リビング|家族でゆったり時間を過ごせるリビング。(2026年3月撮影)

◆リビング|日差しがたくさん差し込む明るいリビング。(2026年3月撮影)
キッチン

◆キッチン|大容量の収納付きで、大きなお鍋やお皿も収納しやすいです♪(2026年3月撮影)

◆キッチン|窓があることで手元が見やすく作業に集中できるのが魅力です!(2026年3月撮影)
外観

◆外観|即日対応可能!お気軽にお問い合わせください♪(2026年3月撮影)

◆外観|県道3号線へアクセス良好の立地♪(2026年3月撮影)

◆外観|駐車スペースがあるので、車をお持ちの方にも安心の住環境。(2026年3月撮影)
物件詳細情報
| 物件名 | HMH久喜市本町1期 | ||
|---|---|---|---|
| お問い |
10201660 | 価格 | 1,799万円 |
| 物件 |
戸建[中古] | 築年月 | 1983年06月築 |
| 住所 | 埼玉県久喜市本町6丁目地図を見る地図を見る | 最寄駅 | 宇都宮線久喜駅 徒歩20分 |
| 間取 | 4DK | 構造 / |
木造 / 2階 |
| 建物 |
78.63㎡ |
土地 |
124.88㎡ |
| 建ぺい率 | 60% | 容積率 | 100% |
| 土地 |
所有権 | 用途 |
第一種低層住居専用地域 |
| 建築 |
接道 | 方向:南 幅員:4m (私道) /私道負担面積:143㎡ (私道負担割合:1/6) | |
| 設備 | |||
| 取引 |
売主 | 引渡 |
相談 |
| 物件 |
空室中 | 駐車場 | カースペース 1台 |
| 法令上の制限 | その他制限事項:※景観法※宅地造成及び特定盛土等規制法※防火指定22条区域※絶対高さ制限10m制限※日影規制(2種、4h-2.5h/1.5m)※道路斜線制限※北側斜線制限※都市計画道路有(北西側70m、3・4・2大宮栗橋線、幅員21m、計画決定(南西側140m、3・4・4久喜市西停車場、幅員20m、完了)※埼玉県景観条例※景観計画区域 | ||
| 備考 | |||
| 情報 |
次回情報 更新予定日 |
||
| 取引条件の 有効期限 |
|||
周辺環境・地図

久喜市立本町小学校(160m)

久喜市立久喜中学校(900m)

スーパーマルサン久喜店(700m)

セブンイレブン久喜本町1丁目店(750m)

アリオ鷲宮(1100m)

アクロスプラザ久喜(250m)

ニトリ久喜店(3500m)

大浦公園(650m)

久喜駅(1500m)
※地図は周辺エリアを表示しております。
※地図上に表示されている周辺環境情報に関しては最新の情報でない場合があり、また実際の所在地と位置が異なる場合がございます。
ローン シミュレーション
結果を見る ▼
※枠内に数値をご入力ください
物件価格(※1)
万円
諸費用
万円
※物件価格の約%で概算諸費用を計算しています。
購入費用総額
万円
自己資金
万円
お借入金額
万円
毎月返済分
万円
賞与返済分(※2)
万円
金利(※3)
%
借入年数
シミュレーションの結果
月々の支払金額
円
賞与月の支払金額
円
※1 金融機関の審査の結果によって借入ができない場合があります。
※2 賞与返済月は年2回(6ヵ月目、12ヵ月目、18ヵ月目...)を仮定しています。
※3 お借入期間、金利が変わらないものと仮定し、適用金利をお約束するものではありません。将来の金利動向により結果が異なる場合があります。
本シミュレーションは概算のためお借り入れの内容によっては実際の計算と異なる場合があります。
※2 賞与返済月は年2回(6ヵ月目、12ヵ月目、18ヵ月目...)を仮定しています。
※3 お借入期間、金利が変わらないものと仮定し、適用金利をお約束するものではありません。将来の金利動向により結果が異なる場合があります。
本シミュレーションは概算のためお借り入れの内容によっては実際の計算と異なる場合があります。
キャンペーン情報
お問い合わせ
この物件を見ている人に おすすめの物件


《即日対応可能》周辺環境の充実した便利で住みやすい立地♪
◆ココに注目!
1.周辺環境◎アリオ鷲宮まで車で5分(約1.1km)!
2.本町小学校まで約160m&久喜中学校まで約900m!近くて安心のエリアです♪
☆ローン承認実績多数!銀行10社からピッタリのプランをご提案!
◆こんな質問お待ちしてます*。
年齢が高くてもローンは組める?
延滞歴があってもローンは組める?
車のローンはおまとめできる?
『こんな時代だからこそ安心を』
住宅ローンには万が一の生命保険付き☆
将来も安心な返済計画を当店でプロとお話してみませんか☆