×
| 住所 | 群馬県太田市新田木崎町 |
|---|---|
| 交通 | 東武伊勢崎線木崎駅まで 徒歩8分 |
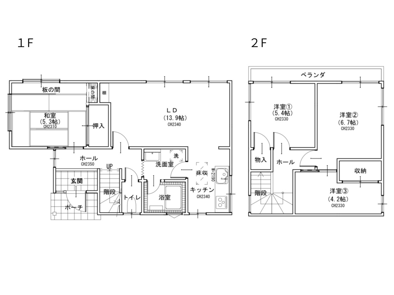
| 間取 | 3LDK+S |
| 建物 |
89.68㎡ |
| 土地 |
256.97㎡ |
| 築年月 | 1981年07月築 |
2階建て
ケイアイエポックメイキング株式会社太田店スタッフおすすめポイント
リビング・ダイニング

リフォーム中写真|日差しがたくさん差し込む明るいリビング

リフォーム中写真|13.9帖のリビングで家族団らんの時間が過ごせます♪
キッチン

リフォーム中写真※キッチン取付前|窓から日の光が入る明るいキッチンスペース♪

リフォーム中写真※キッチン取付前|広さに余裕があり家事が楽にこなせます♪
水回り

リフォーム中写真※トイレ取付前|窓のある明るいトイレスペース♪

リフォーム中写真※設備取付前|洗面脱衣室も改装中です♪
その他居室

リフォーム中写真|お昼寝スペースや客間に適したリビング隣の部屋♪

リフォーム中写真|リビング横にあるのでマルチに使えて便利な洋室♪

リフォーム中写真|大きい窓のある2階のお部屋♪

リフォーム中写真|バルコニーに面した明るい洋室♪

リフォーム中写真|書斎や納戸としても活用できる多用途な洋室です♪

リフォーム中写真|中段付きの押し入れもあります♪
外観

リフォーム中写真|リフォーム工事中もご見学OKです♪

リフォーム中写真|落ち着いた住宅街の一角に位置し、静かな暮らしを求める方におすすめです

リフォーム中写真|快適なプライベート空間を楽しめるお庭付き

リフォーム中写真|毎日の出入りがスムーズな、ゆとりある玄関前スペース

リフォーム前写真|両隣との距離も適度で、窮屈さを感じにくい配置が魅力

リフォーム前写真|敷地内駐車2台可能!

車通りが少なく、小さなお子様がいても安心♪
物件詳細情報
| 物件名 | HMH太田市新田木崎町2期中古戸建 | ||
|---|---|---|---|
| お問い |
10301360 | 価格 | 1,499万円 |
| 物件 |
戸建[中古] | 築年月 | 1981年07月築 |
| 住所 | 群馬県太田市新田木崎町地図を見る地図を見る | 最寄駅 | 東武伊勢崎線木崎駅 徒歩8分 |
| 間取 | 3LDK+S | 構造 / |
軽量鉄骨 / 2階 |
| 建物 |
89.68㎡ |
土地 |
256.97㎡ |
| 建ぺい率 | 60% | 容積率 | 200% |
| 土地 |
所有権 | 用途 |
第一種住居地域 |
| 建築 |
接道 | 方向:北東 幅員:4m (私道) | |
| リフォーム |
■外装:外壁,屋根,外装全面,その他
《浄化槽→公共下水》
(2026年04月)
■内装:キッチン,浴室,トイレ,洗面所,壁,床,その他 《玄関ドアシリンダー交換、一部建具交換、一部フローリング、一部CF上張り、防蟻工事》 (2026年04月完了予定) |
||
| 設備 | |||
| 取引 |
仲介 | 引渡 |
相談 |
| 物件 |
空室中 | 駐車場 | 敷地内車庫1台 |
| 備考 | |||
| 情報 |
次回情報 更新予定日 |
||
| 取引条件の 有効期限 |
|||
周辺環境・地図

太田市立木崎中学校(950m)

群馬銀行尾島支店(1700m)

太田市立木崎小学校(1300m)

ゆりかご保育園(1029m)

クスリのアオキ新田木崎店(670m)

尾島公園(1988m)

ミニストップ尾島粕川店(413m)

ベイシア尾島店(193m)

尾島郵便局(1705m)
※地図は周辺エリアを表示しております。
※地図上に表示されている周辺環境情報に関しては最新の情報でない場合があり、また実際の所在地と位置が異なる場合がございます。
ローン シミュレーション
結果を見る ▼
※枠内に数値をご入力ください
物件価格(※1)
万円
諸費用
万円
※物件価格の約%で概算諸費用を計算しています。
購入費用総額
万円
自己資金
万円
お借入金額
万円
毎月返済分
万円
賞与返済分(※2)
万円
金利(※3)
%
借入年数
シミュレーションの結果
月々の支払金額
円
賞与月の支払金額
円
※1 金融機関の審査の結果によって借入ができない場合があります。
※2 賞与返済月は年2回(6ヵ月目、12ヵ月目、18ヵ月目...)を仮定しています。
※3 お借入期間、金利が変わらないものと仮定し、適用金利をお約束するものではありません。将来の金利動向により結果が異なる場合があります。
本シミュレーションは概算のためお借り入れの内容によっては実際の計算と異なる場合があります。
※2 賞与返済月は年2回(6ヵ月目、12ヵ月目、18ヵ月目...)を仮定しています。
※3 お借入期間、金利が変わらないものと仮定し、適用金利をお約束するものではありません。将来の金利動向により結果が異なる場合があります。
本シミュレーションは概算のためお借り入れの内容によっては実際の計算と異なる場合があります。
キャンペーン情報
お問い合わせ
この物件を見ている人に おすすめの物件






\リフォーム工事中/セキスイハイム施工!周辺環境◎木崎駅まで徒歩約8分!
◎リフォーム中もご見学OK!
◎少人数・お一人様でもご案内いたします♪
*---------------------------------*
▼おすすめポイント
・住環境充実で子育て世代にもおすすめ
・敷地内駐車2台可能!
・閑静な住宅街で安心
▼周辺環境
・木崎小学校(約1300m)
・木崎中学校(約950m)
・ローソン太田泉町店(約850m)
・とりせん下田島店(約1500m)
*--------------------------------*
▼本日ご見学可能
「今から見たい!」「お一人でも安心」お気軽にお問い合わせ♪
住宅ローンのご相談も随時お任せください!