×
| 住所 | 茨城県龍ケ崎市出し山 |
|---|---|
| 交通 | 竜ヶ崎線竜ヶ崎駅まで 徒歩25分 |
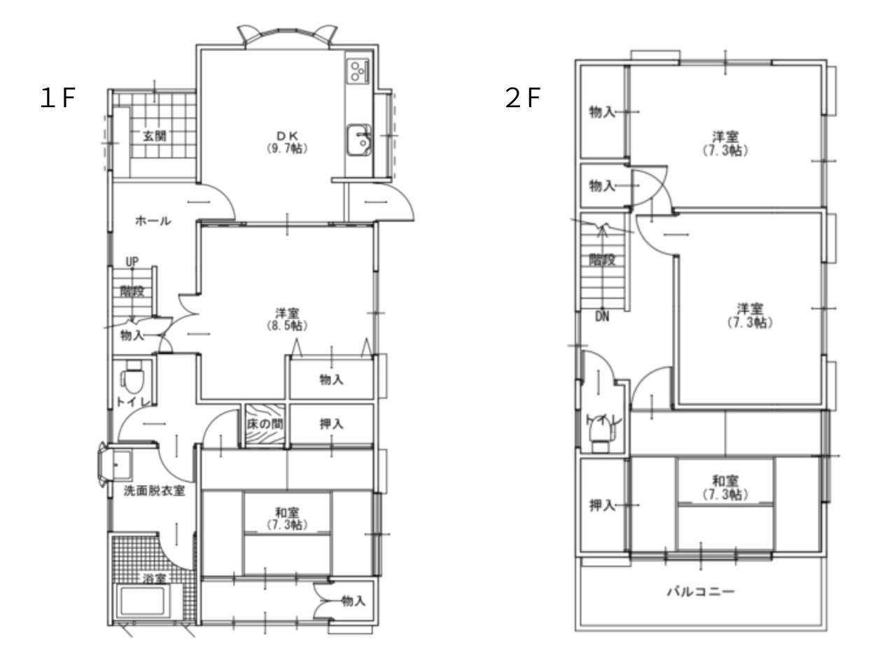
| 間取 | 5DK |
| 建物 |
126㎡ |
| 土地 |
198㎡ |
| 築年月 | 1992年06月築 |
駐車場
2台可
2階建て
都市ガス
南向き
小学校徒歩
10分以内
ケイアイエポックメイキング株式会社土浦店スタッフおすすめポイント
間取

38.12坪のゆとりのある5DL
リビング・ダイニング

日差しがたくさん差し込む明るいリビング
キッチン

ご夫婦やお子様と並んでお料理をしても余裕のある、広々としたキッチン

大容量収納なので大きなお鍋やお皿も収納しやすいです

食事・調理・片付けがスムーズに行える、効率の良いダイニングキッチン
水回り

シンプルで使い勝手の良い洗面化粧台付き。

大きな窓があり、開放的で明るい浴室
その他居室

お子様のお昼寝スペースや、洗濯物をたたむのに最適♪

客間やリビングの延長としても最適

お子様の勉強スペースやパパママのワークスペースなど、マルチに使えて便利なお部屋
その他内装

木のぬくもりを感じられる落ち着いた玄関スペース
外観

緑の植栽が映える外観

カーポート付きなので、雨の日でも濡れることなく快適。紫外線から大切なお車を守ります!

車通りが少なく、小さなお子様がいても安心♪

落ち着いた住宅街の一角に位置し、静かな暮らしを求める方におすすめです

前面道路6.2m以上あるので、駐車が苦手な方でも安心です◎
物件詳細情報
| 物件名 | 龍ケ崎市出し山町1期 中古戸建 | ||
|---|---|---|---|
| お問い |
10401324 | 価格 | 1,199万円 |
| 物件 |
戸建[中古] | 築年月 | 1992年06月築 |
| 住所 | 茨城県龍ケ崎市出し山地図を見る地図を見る | 最寄駅 | 竜ヶ崎線竜ヶ崎駅 徒歩25分 |
| 間取 | 5DK | 構造 / |
木造 / 2階 |
| 建物 |
126㎡ |
土地 |
198㎡ |
| 建ぺい率 | 60% | 容積率 | 200% |
| 土地 |
所有権 | 用途 |
第二種低層住居専用地域 |
| 建築 |
接道 | 方向:北 幅員:6.2m (公道) | |
| 設備 | |||
| 取引 |
代理 | 引渡 |
相談 |
| 物件 |
空室中 | 駐車場 | 屋外2台 |
| 備考 | |||
| 情報 |
次回情報 更新予定日 |
||
| 取引条件の 有効期限 |
|||
周辺環境・地図

龍ケ崎中学校(1700m)

ウエルシア龍ケ崎緑町店(350m)

セブンイレブン龍ケ崎出し山町店 (240m)

ヤオコー龍ケ崎店 (850m)

竜ケ崎駅(1900m)

龍ケ崎小学校(400m)
※地図は周辺エリアを表示しております。
※地図上に表示されている周辺環境情報に関しては最新の情報でない場合があり、また実際の所在地と位置が異なる場合がございます。
ローン シミュレーション
結果を見る ▼
※枠内に数値をご入力ください
物件価格(※1)
万円
諸費用
万円
※物件価格の約%で概算諸費用を計算しています。
購入費用総額
万円
自己資金
万円
お借入金額
万円
毎月返済分
万円
賞与返済分(※2)
万円
金利(※3)
%
借入年数
シミュレーションの結果
月々の支払金額
円
賞与月の支払金額
円
※1 金融機関の審査の結果によって借入ができない場合があります。
※2 賞与返済月は年2回(6ヵ月目、12ヵ月目、18ヵ月目...)を仮定しています。
※3 お借入期間、金利が変わらないものと仮定し、適用金利をお約束するものではありません。将来の金利動向により結果が異なる場合があります。
本シミュレーションは概算のためお借り入れの内容によっては実際の計算と異なる場合があります。
※2 賞与返済月は年2回(6ヵ月目、12ヵ月目、18ヵ月目...)を仮定しています。
※3 お借入期間、金利が変わらないものと仮定し、適用金利をお約束するものではありません。将来の金利動向により結果が異なる場合があります。
本シミュレーションは概算のためお借り入れの内容によっては実際の計算と異なる場合があります。
キャンペーン情報
お問い合わせ
この物件を見ている人に おすすめの物件



\現況販売中!/龍ケ崎小学校徒歩7分!周辺に商業施設が充実♪*----------------------*
▼おすすめポイント
・住環境充実で子育て世代にもおすすめ
・日当たり良好!明るいお部屋
・閑静な住宅街で安心
・並列2台駐車可能!
▼周辺環境
・龍ケ崎小学校(約550m)
・龍ケ崎中学校(約1800m)
・ヤオコー竜ヶ崎店(約850m)
・セブンイレブン龍ケ崎出し山町店(約250m)
*---------------------*
▼本日ご見学可能
「今から見たい!」「お一人でも安心」お気軽にお問い合わせ♪
住宅ローンのご相談も随時お任せください!