×
| 住所 | 茨城県猿島郡五霞町大字元栗橋 |
|---|---|
| 交通 | 東武日光線幸手駅まで 徒歩33分 |
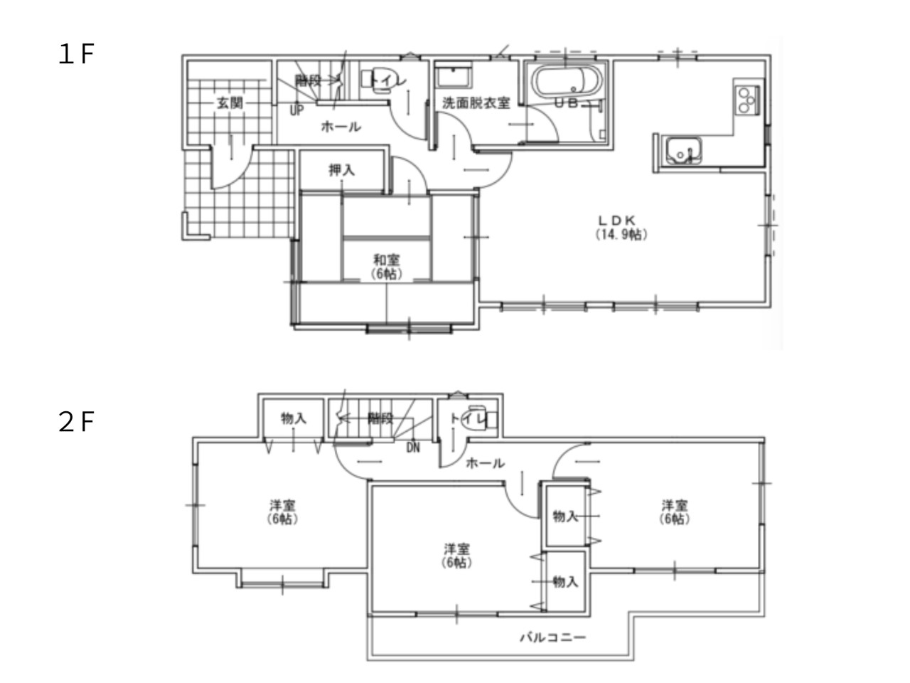
| 間取 | 4LDK |
| 建物 |
94.6㎡ |
| 土地 |
174.06㎡ |
| 築年月 | 2005年03月築 |
2階建て
LDK15畳以上
対面キッチン
駐車場
3台以上
システム
キッチン
全居室
6畳以上
フラット35・S適合
ケイアイエポックメイキング株式会社土浦店スタッフおすすめポイント
間取

間取-
リビング・ダイニング

ダイニングテーブルやソファを置いても十分な広さがあり、ご家族での団らんや来客時にもゆとりをもって対応できます

日差しがたくさん差し込む明るいリビング
キッチン

L字型のキッチンは、作業スペースが広く、収納力も抜群! 調理道具や食材の整理整頓がしやすく、日々の家事もスムーズにこなせます
水回り

窓のある明るい1階トイレ

シンプルで使い勝手の良い洗面化粧台付き。

窓付きの明るい浴室

2階にもトイレがあり、忙しい朝や夜間も便利
その他居室

リビングと一体利用が可能な和室

家具のレイアウトがしやすい、シンプルで使い勝手の良い洋室です

お子様の勉強スペースやパパママのワークスペースなど、マルチに使えて便利なお部屋

2方向に窓があり、自然光がたっぷり入る明るい室内
その他内装

鏡付きのシューズボックス付きで忙しい朝でも、外出前に身だしなみを確認して出発できます
外観

車通りが少なく、小さなお子様がいても安心♪

前面道路6mあるので、駐車が苦手な方でも安心です◎

両隣との距離も適度で、窮屈さを感じにくい配置が魅力
物件詳細情報
| 物件名 | HMH猿島郡五霞町2期 中古戸建 | ||
|---|---|---|---|
| お問い |
10401340 | 価格 | 1,599万円 |
| 物件 |
戸建[中古] | 築年月 | 2005年03月築 |
| 住所 | 茨城県猿島郡五霞町大字元栗橋地図を見る地図を見る | 最寄駅 | 東武日光線幸手駅 徒歩33分 |
| 間取 | 4LDK | 構造 / |
木造 / 2階 |
| 建物 |
94.6㎡ |
土地 |
174.06㎡ |
| 建ぺい率 | 60% | 容積率 | 200% |
| 土地 |
所有権 | 用途 |
第一種住居地域 |
| 建築 |
接道 | 方向:南 幅員:6m (私道) /私道負担面積:31.22㎡ | |
| 設備 | |||
| 取引 |
仲介 | 引渡 |
相談 |
| 物件 |
空室中 | 駐車場 | 屋外6台 |
| 備考 | |||
| 情報 |
次回情報 更新予定日 |
||
| 取引条件の 有効期限 |
|||
周辺環境・地図

ベルク幸手店(1800m)

ウエルシア茨城五霞店(1100m)

セブンイレブン五霞元栗橋店 (1800m)

マツモトキヨシ 幸手北店(1600m)

幸手駅(2600m)

五霞町立五霞小学校(3200m)

ミニストップ五霞原宿台店(800m)

五霞町立五霞中学校(3100m)
※地図は周辺エリアを表示しております。
※地図上に表示されている周辺環境情報に関しては最新の情報でない場合があり、また実際の所在地と位置が異なる場合がございます。
ローン シミュレーション
結果を見る ▼
※枠内に数値をご入力ください
物件価格(※1)
万円
諸費用
万円
※物件価格の約%で概算諸費用を計算しています。
購入費用総額
万円
自己資金
万円
お借入金額
万円
毎月返済分
万円
賞与返済分(※2)
万円
金利(※3)
%
借入年数
シミュレーションの結果
月々の支払金額
円
賞与月の支払金額
円
※1 金融機関の審査の結果によって借入ができない場合があります。
※2 賞与返済月は年2回(6ヵ月目、12ヵ月目、18ヵ月目...)を仮定しています。
※3 お借入期間、金利が変わらないものと仮定し、適用金利をお約束するものではありません。将来の金利動向により結果が異なる場合があります。
本シミュレーションは概算のためお借り入れの内容によっては実際の計算と異なる場合があります。
※2 賞与返済月は年2回(6ヵ月目、12ヵ月目、18ヵ月目...)を仮定しています。
※3 お借入期間、金利が変わらないものと仮定し、適用金利をお約束するものではありません。将来の金利動向により結果が異なる場合があります。
本シミュレーションは概算のためお借り入れの内容によっては実際の計算と異なる場合があります。
キャンペーン情報
お問い合わせ
この物件を見ている人に おすすめの物件



\現況販売中/駐車場6台駐車可能!性能評価取得物件!*----------------------*
▼おすすめポイント
・耐震等級3で最高等級を取得♪
・前面道路が6mでラクラク駐車♪
・日当たり良好!明るいお部屋
・閑静な住宅街で安心
▼周辺環境
・五霞小学校(約3100m)
・五霞中学校(約3100m)
・ミニストップ 五霞原宿台店(約800m)
・ベルク 幸手北店(約1600m)
*---------------------*
▼本日ご見学可能
「今から見たい!」「お一人でも安心」お気軽にお問い合わせ♪
住宅ローンのご相談も随時お任せください!