×
| 住所 | 茨城県牛久市さくら台1 |
|---|---|
| 交通 | 常磐線牛久駅まで 徒歩33分 |
| 間取 | 3LDK |
| 建物 |
108.71㎡ |
| 土地 |
166.88㎡ |
| 築年月 | 1990年03月築 |
2階建て
浴室乾燥機
駐車場
3台以上
スーパー徒歩
10分以内
システム
キッチン
全居室
6畳以上
ケイアイエポックメイキング株式会社土浦店スタッフおすすめポイント
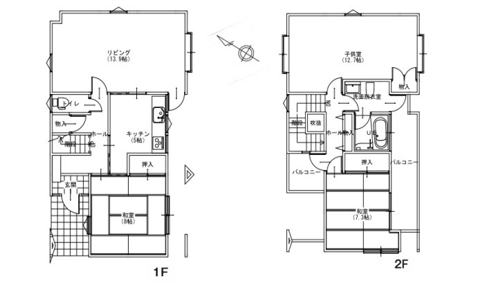
間取

間取り図
リビング・ダイニング
キッチン

《キッチン》広めのシンクで洗い物がラク♪※リフォーム前写真(撮影日:2025/12/5)
水回り

《浴室》窓付きで換気もばっちり!※リフォーム前写真(撮影日:2025/12/5)
その他居室

《和室》8畳ある和室でのびのび過ごせる(^^)/※リフォーム前写真(撮影日:2025/12/5)

《和室》バルコニーに近い7.3畳和室※リフォーム前写真(撮影日:2025/12/5)

《洋室》12.7帖ある洋室はフローリング仕様で、お掃除もラクラク♪※リフォーム前写真(撮影日:2025/12/5)
外観

《外観》これから外観の塗装も行います♪※リフォーム前写真(撮影日:2025/12/27)

《駐車場》カーポート付きなので、雨の日でも濡れることなく快適です♪※リフォーム前写真(撮影日:2025/12/27)

《玄関》白を基調とした優しいデザインの外観です※リフォーム前写真(撮影日:2025/12/27)
物件詳細情報
| 物件名 | KEM牛久市さくら台1期 中古戸建 | ||
|---|---|---|---|
| お問い |
10401600 | 価格 | 1,899万円 |
| 物件 |
戸建[中古] | 築年月 | 1990年03月築 |
| 住所 | 茨城県牛久市さくら台1丁目地図を見る地図を見る | 最寄駅 | 常磐線牛久駅 徒歩33分 |
| 間取 | 3LDK | 構造 / |
木造 / 2階 |
| 建物 |
108.71㎡ |
土地 |
166.88㎡ |
| 建ぺい率 | 50% | 容積率 | 100% |
| 土地 |
所有権 | 用途 |
第一種低層住居専用地域 |
| 建築 |
牛第676号(平成元年11月16日) | 接道 | 方向:南西 幅員:6m (公道) |
| リフォーム |
■外装:外壁,屋根,その他
《上水道引き込み工事》
(2026年02月)
■内装:給湯器,壁,床,建具,その他 《天井一部張替え、スイッチ・コンセント交換・インターホン交換、火災報知器設置、防蟻工事、クリーニング》 (2026年02月完了予定) |
||
| 設備 | |||
| 取引 |
売主 | 引渡 |
相談 |
| 物件 |
空室中 | 駐車場 | カースペース 3台 |
| 法令上の制限 | |||
| 備考 | |||
| 情報 |
次回情報 更新予定日 |
||
| 取引条件の 有効期限 |
|||
周辺環境・地図

牛久南中学校(550m)

ヤックスドラッグ牛久神谷店(700m)

牛久駅(2600m)

ローソン牛久女化町店(800m)

セブンイレブン牛久さくら台(700m)

ジョイフーズ牛久さくら台(650m)

向台小学校(1400m)
※地図は周辺エリアを表示しております。
※地図上に表示されている周辺環境情報に関しては最新の情報でない場合があり、また実際の所在地と位置が異なる場合がございます。
ローン シミュレーション
結果を見る ▼
※枠内に数値をご入力ください
物件価格(※1)
万円
諸費用
万円
※物件価格の約%で概算諸費用を計算しています。
購入費用総額
万円
自己資金
万円
お借入金額
万円
毎月返済分
万円
賞与返済分(※2)
万円
金利(※3)
%
借入年数
シミュレーションの結果
月々の支払金額
円
賞与月の支払金額
円
※1 金融機関の審査の結果によって借入ができない場合があります。
※2 賞与返済月は年2回(6ヵ月目、12ヵ月目、18ヵ月目...)を仮定しています。
※3 お借入期間、金利が変わらないものと仮定し、適用金利をお約束するものではありません。将来の金利動向により結果が異なる場合があります。
本シミュレーションは概算のためお借り入れの内容によっては実際の計算と異なる場合があります。
※2 賞与返済月は年2回(6ヵ月目、12ヵ月目、18ヵ月目...)を仮定しています。
※3 お借入期間、金利が変わらないものと仮定し、適用金利をお約束するものではありません。将来の金利動向により結果が異なる場合があります。
本シミュレーションは概算のためお借り入れの内容によっては実際の計算と異なる場合があります。
キャンペーン情報
お問い合わせ
この物件を見ている人に おすすめの物件


閑静な住宅街でスーパー、コンビニが徒歩圏内にあり、生活環境良好◎▼おすすめポイント
・住環境充実で子育て世代にもおすすめ
・前面道路が6.0mと広く、駐車しやすい♪
・閑静な住宅街で安心
・駐車3台可能♪
■気軽に相談ができる■
お家探しを始め、
住宅ローンや今後のライフプランなど
一緒に考えていきましょう♪
また、エリアを問わず様々な物件を
ご紹介できますので、ぜひご相談ください♪
窓口ひとつでトータルサポート♪
■多数の金融機関と提携■
お客様に最適な住宅ローンの提案が可能です♪
他で断られた方も承認になる場合が御座います!
まずはご相談ください♪