×
| 住所 | 茨城県ひたちなか市大字中根 |
|---|---|
| 交通 | 常磐線勝田駅まで 徒歩34分 |
| 間取 | 5DK |
| 建物 |
110.54㎡ |
| 土地 |
220.07㎡ |
| 築年月 | 1981年09月築 |
駐車場
2台可
2階建て
システム
キッチン
ケイアイエポックメイキング株式会社土浦店スタッフおすすめポイント
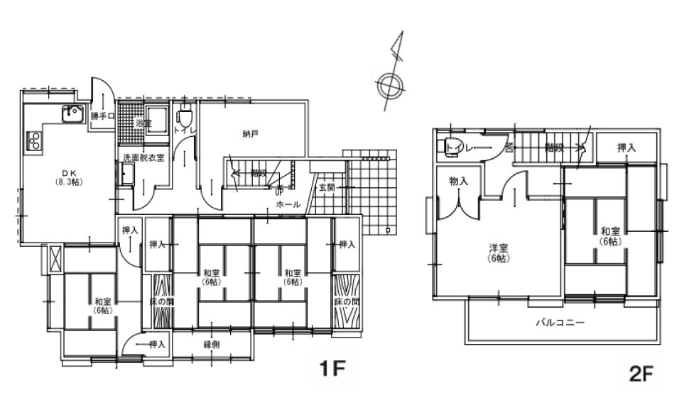
間取

間取り図
リビング・ダイニング

◆リビング|(リフォーム中写真)
キッチン

◆キッチン新品に交換します♪
水回り

◆洗面台|シンプルで使い勝手の良い洗面化粧台。※リフォーム前写真(2026年2月撮影)

◆浴室|浴室は交換しました♪※リフォーム中写真(2026年4月撮影)

◆トイレ|新品に交換します♪※リフォーム中写真(2026年4月撮影)
その他居室

◆1F西側和室6帖|※リフォーム中写真(2026年4月撮影)

◆1F真ん中和室6帖|※リフォーム中写真(2026年4月撮影)

◆※リフォーム中写真(2026年4月撮影)

◆2面採光で陽当たり良好のお部屋です♪※リフォーム中写真(2026年4月撮影)
外観

◆外観|ご見学予約受付中です♪※リフォーム中写真(2026年4月撮影)

◆外観|駐車場拡張工事で駐車2台可能!※リフォーム中写真(2026年4月撮影)

白を基調とした優しいデザインの外観です♪

【外観】見学可能!お気軽にお問い合わせください♪※2026年4月撮影

◆外観|全面道路の幅が6.0mあるので駐車も楽々♪※リフォーム中の写真です

【玄関】雨の日も安心の屋根付き玄関♪
物件詳細情報
| 物件名 | KEMひたちなか市中根1期 | ||
|---|---|---|---|
| お問い |
10401661 | 価格 | 1,899万円 |
| 物件 |
戸建[中古] | 築年月 | 1981年09月築 |
| 住所 | 茨城県ひたちなか市大字中根地図を見る地図を見る | 最寄駅 | 常磐線勝田駅 徒歩34分 |
| 間取 | 5DK | 構造 / |
木造 / 2階 |
| 建物 |
110.54㎡ |
土地 |
220.07㎡ |
| 建ぺい率 | 50% | 容積率 | 100% |
| 土地 |
所有権 | 用途 |
第一種低層住居専用地域 |
| 建築 |
第勝90号 | 接道 | 方向:北東 幅員:6m (公道) |
| リフォーム |
■外装:その他
《駐車場拡張、塀解体》
(2026年05月)
■内装:キッチン,浴室,トイレ,給湯器,壁,床,その他 《一部天井張替え、火災報知機、スイッチ・コンセント交換、クリーニング、物置解体、ブロック解体》 (2026年05月完了予定) |
||
| 設備 | |||
| 取引 |
売主 | 引渡 |
相談 |
| 物件 |
空室中 | 駐車場 | カースペース 2台 |
| 法令上の制限 | その他制限事項:※景観法※日影規制(1種、3h-2h/1.5m)※道路斜線制限※北側斜線制限※絶対高さ制限10m※都市再生特別措置法※立地適正化計画(居住誘導区域内・都市機能誘導区域外)※宅地造成及び特定盛土等規制法 | ||
| 備考 | |||
| 情報 |
次回情報 更新予定日 |
||
| 取引条件の 有効期限 |
|||
周辺環境・地図

外野小学校(1300m)

大島中学校(1700m)

カスミフードスクエアひたちなか笹野店(900m)
※地図は周辺エリアを表示しております。
※地図上に表示されている周辺環境情報に関しては最新の情報でない場合があり、また実際の所在地と位置が異なる場合がございます。
ローン シミュレーション
結果を見る ▼
※枠内に数値をご入力ください
物件価格(※1)
万円
諸費用
万円
※物件価格の約%で概算諸費用を計算しています。
購入費用総額
万円
自己資金
万円
お借入金額
万円
毎月返済分
万円
賞与返済分(※2)
万円
金利(※3)
%
借入年数
シミュレーションの結果
月々の支払金額
円
賞与月の支払金額
円
※1 金融機関の審査の結果によって借入ができない場合があります。
※2 賞与返済月は年2回(6ヵ月目、12ヵ月目、18ヵ月目...)を仮定しています。
※3 お借入期間、金利が変わらないものと仮定し、適用金利をお約束するものではありません。将来の金利動向により結果が異なる場合があります。
本シミュレーションは概算のためお借り入れの内容によっては実際の計算と異なる場合があります。
※2 賞与返済月は年2回(6ヵ月目、12ヵ月目、18ヵ月目...)を仮定しています。
※3 お借入期間、金利が変わらないものと仮定し、適用金利をお約束するものではありません。将来の金利動向により結果が異なる場合があります。
本シミュレーションは概算のためお借り入れの内容によっては実際の計算と異なる場合があります。
キャンペーン情報
お問い合わせ
この物件を見ている人に おすすめの物件




\\即日対応可能//令和8年5月リフォーム完工予定!
☆見学可能です☆
*----------------------*
▼おすすめポイント
・前面道路幅員が6mと広く駐車らくらく♪
・閑静な住宅地◎
・徒歩15分圏内にスーパー・ドラッグストアがあり生活しやすい!
▼周辺環境
・外野小学校(約1300m)
・大島中学校(約1700m)
・カスミフードスクエアひたちなか笹野店(約900m)
・ドラッグストアコスモス中野店(約850m)
*---------------------*
▼本日ご見学可能
「今から見たい!」「お一人でも安心」お気軽にお問い合わせ♪
住宅ローンのご相談も随時お任せください!