| 住所 | 埼玉県鴻巣市稲荷町 |
|---|---|
| 交通 | 高崎線北鴻巣駅まで 徒歩17分 |
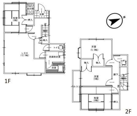
| 間取 | 4LDK |
| 建物 |
91.5㎡ |
| 土地 |
114.57㎡ |
| 築年月 | 1989年12月築 |
2階建て
都市ガス
スーパー徒歩
10分以内
システム
キッチン
浴室1坪以上
小学校徒歩
10分以内
ケイアイエポックメイキング株式会社坂戸店スタッフおすすめポイント
間取

◆間取り|4LDK
リビング・ダイニング

◆リビング(リフォーム中)|リフォーム中もご案内可能です。フローリング張替、クロス施工済みです!

◆リビング(リフォーム中)|リフォーム中もご案内可能です。

◆リビング(リフォーム中)|リフォーム中もご案内可能です。

◆リビング(リフォーム中)|リフォーム中もご案内可能です。

◆リビング(リフォーム中)|リフォーム中もご案内可能です。

◆リビング(リフォーム中)|リフォーム中もご案内可能です。
キッチン

◆キッチン(リフォーム中)|リフォーム中もご案内可能です。キッチン新設しました!

【取付設備】間口の広いシンクなので家族の使った食器がまとめて置けます。スポンジ・洗剤置きも備え付け。 詳しくはスタッフへお問い合わせください。
水回り

◆洗面脱衣室(リフォーム中)|リフォーム中もご案内可能です。洗面所新設しました!

◆浴室(リフォーム中)|リフォーム中もご案内可能です。浴室新設しました!

【取付設備】入浴後の水滴や湿気を排出し、カビの発生や臭いを抑制する換気乾燥暖房機。雨の日の洗濯物にも効果的です。 詳しくはスタッフへお問い合わせください。

【取付設備】温水洗浄便座付きのトイレです。汚れてもサッとひと拭きでお手入れ簡単。 詳しくはスタッフへお問い合わせください。
その他居室

◆1階和室|リフォーム中もご案内可能です。畳表替えします。

◆1階和室(リフォーム中)|リフォーム中もご案内可能です。畳表替えします。

◆1階和室(リフォーム中)|リフォーム中もご案内可能です。畳表替えします。

◆2階和室(リフォーム中)|リフォーム中もご案内可能です。畳表替えします。

◆2階和室(リフォーム中)|リフォーム中もご案内可能です。畳表替えします。

◆2階和室(リフォーム後)|リフォーム中もご案内可能です。

◆2階洋室(リフォーム中)|リフォーム中もご案内可能です。フローリング張替えしました。

◆2階洋室(リフォーム中)|リフォーム中もご案内可能です。フローリング張替えしました。

◆2階洋室(リフォーム中)|リフォーム中もご案内可能です。フローリング張替えしました。

◆2階洋室(リフォーム中)|リフォーム中もご案内可能です。フローリング張替えしました。

◆2階洋室(リフォーム中)|リフォーム中もご案内可能です。フローリング張替えしました。

◆2階洋室(リフォーム中)|リフォーム中もご案内可能です。フローリング張替えしました。
外観

◆外観(リフォーム中)|リフォーム中もご案内可能です。外壁塗装を行いました!

◆外観(リフォーム中)|リフォーム中でもご案内可能です。

◆外観(リフォーム中)|リフォーム中でもご案内可能です。

◆お庭(リフォーム中)|庭があればガーデニングや家庭菜園などが楽しめ、季節の花や野菜を育てることで四季の移ろいが豊かに感じられお子さまの食育にもつながります。
設備・構造

【取付設備】間口の広いシンクなので家族の使った食器がまとめて置けます。スポンジ・洗剤置きも備え付け。 詳しくはスタッフへお問い合わせください。

【取付設備】ガスコンロは同時調理が可能な3口コンロ。ご飯の支度が時短になります。 詳しくはスタッフへお問い合わせください。

【取付設備】入浴後の水滴や湿気を排出し、カビの発生や臭いを抑制する換気乾燥暖房機。雨の日の洗濯物にも効果的です。 詳しくはスタッフへお問い合わせください。

【取付設備】髪の毛や石鹸カスなどをキャッチ。排水パイプの詰まりを防ぎ、いやな臭いの発生も抑えます。 詳しくはスタッフへお問い合わせください。

【取付設備】洗面台が収納ポケットになっているので、ヘアケア用品や歯ブラシなどでごちゃつきがちな洗面台周りがスッキリ片付きます。 詳しくはスタッフへお問い合わせください。

【取付設備】温水洗浄便座付きのトイレです。汚れてもサッとひと拭きでお手入れ簡単。 詳しくはスタッフへお問い合わせください。
物件詳細情報
| 物件名 | HMH鴻巣市稲荷町1期 | ||
|---|---|---|---|
| お問い |
10601360 | 価格 | 1,999万円 |
| 物件 |
戸建[中古] | 築年月 | 1989年12月築 |
| 住所 | 埼玉県鴻巣市稲荷町地図を見る地図を見る | 最寄駅 | 高崎線北鴻巣駅 徒歩17分 |
| 間取 | 4LDK | 構造 / |
木造 / 2階 |
| 建物 |
91.5㎡ |
土地 |
114.57㎡ |
| 建ぺい率 | 50% | 容積率 | 80% |
| 土地 |
所有権 | 用途 |
第一種低層住居専用地域 |
| 建築 |
第31号 | 接道 | 方向:西 間口:10.8m 幅員:4.5m (公道) |
| リフォーム |
■外装:外壁,屋根,外装全面
(2026年05月)
■内装:キッチン,浴室,トイレ,洗面所,給湯器,給排水管,壁,床 (2026年05月完了予定) |
||
| 設備 | |||
| 取引 |
仲介 | 引渡 |
相談 |
| 物件 |
空室中 | 駐車場 | 屋外1台 |
| 法令上の制限 | |||
| 備考 | *リフォーム着手:2025年12月上旬予定。リフォーム完工:2026年3月中旬予定。*司法書士は売主指定となります。*別途諸費用が掛かります。*図面と現況が異なる場合は、現況を優先します。*境界非明示となります。測量等を希望される場合は、買主負担となります。*建築確認番号:第31号(平成1年4月7日*ハザードマップ3.0m-5.0mに該当しております。 |
||
| 情報 |
次回情報 更新予定日 |
||
| 取引条件の 有効期限 |
|||
周辺環境・地図









※地図は周辺エリアを表示しております。
※地図上に表示されている周辺環境情報に関しては最新の情報でない場合があり、また実際の所在地と位置が異なる場合がございます。
ローン シミュレーション
※枠内に数値をご入力ください
物件価格(※1)
諸費用
購入費用総額
自己資金
お借入金額
毎月返済分
賞与返済分(※2)
金利(※3)
借入年数
シミュレーションの結果
月々の支払金額
賞与月の支払金額
※2 賞与返済月は年2回(6ヵ月目、12ヵ月目、18ヵ月目...)を仮定しています。
※3 お借入期間、金利が変わらないものと仮定し、適用金利をお約束するものではありません。将来の金利動向により結果が異なる場合があります。
本シミュレーションは概算のためお借り入れの内容によっては実際の計算と異なる場合があります。
キャンペーン情報
お問い合わせ
この物件を見ている人に おすすめの物件



\◎諸費用コミコミ◎/
◆月々6万円台から♪
◆年収400万円から購入可能
\◎KEIAIのリフォーム◎/
当社が自信を持ってオススメする中古戸建です♪
*-------------------*
\◎おすすめポイント◎/
・住環境充実で子育て世代にもおすすめ
・収納完備で片付けはかどる♪
・日当たり良好!明るいお部屋
・家賃より安く憧れの庭付き戸建♪
\◎周辺環境◎/
・赤見台第一小学校(約550m)
・赤見台中学校(約190m)
・ベルク鴻巣宮前店(約1000m)
*-------------------*
\◎本日ご見学可能◎/
「今から見たい!」「お一人でも安心」お気軽にお問い合わせ♪
住宅ローンのご相談も随時お任せください!