| 住所 | 埼玉県川越市大字笠幡 |
|---|---|
| 交通 | 川越線笠幡駅まで 徒歩18分 |
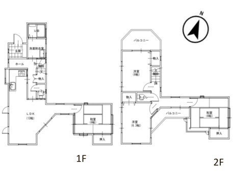
| 間取 | 4LDK |
| 建物 |
91.08㎡ |
| 土地 |
110.01㎡ |
| 築年月 | 1998年06月築 |
2階建て
浴室乾燥機
システム
キッチン
浴室1坪以上
全居室
6畳以上
ケイアイエポックメイキング株式会社坂戸店スタッフおすすめポイント
間取

◆間取り|4LDK
リビング・ダイニング

◆リビング(リフォーム中)|ぬくもりを感じる親しみやすいコーディネート。インテリアグリーンを取り入れて緑あふれる明るいリビングにしても良いですね。

◆リビング(リフォーム中)|自然光も入りやすく、日中は明るく快適に過ごせます♪

◆リビング(リフォーム中)|木のぬくもりがあふれるダイニング。家族がそろう食事の時間はもちろん、ひとりの時間もリラックスして過ごせます

◆リビング(リフォーム中)|ナチュラルな質感で魅せる、くつろぎの時間。ゆっくりとした時間が流れるリビングで、家族だんらんのひと時をお過ごしいただけます。

◆リビング(リフォーム中)|適度な広さや日当たりのいいリビングには家族が自然と集まってきます。お子さまが自分の部屋に行くときに自然と家族が顔を合わせ会話がしやすい環境になります。

◆リビング(リフォーム中)|家族が集まる団らんのひととき、ひとりでリラックスしたい夜、ゲストを招いてわいわい過ごす休日、どんなシーンにも対応できるリビングです。
キッチン

◆キッチン(リフォーム中)|ご夫婦やお子様と並んでお料理をしても余裕のある、広々としたキッチンです。

【取付予定設備】間口の広いシンクなので家族の使った食器がまとめて置けます。スポンジ・洗剤置きも備え付け。 詳しくはスタッフへお問い合わせください。
水回り

◆洗面脱衣室(リフォーム中)|毎日使う洗面スペースや浴室は、モノがあふれてごちゃついていまいがち。スペースに収納すればスッキリ整います。心地よい空間で身支度したら、素敵な一日がはじまります。

◆浴室(リフォーム中)|お子さんと一緒にゆっくりと入れる、1坪サイズの広い浴室。一日の疲れを取りながら、学校や友だちの話に耳を傾ける、親子の大切なひとときが過ごせる。浴室換気乾燥機、保温浴槽も標準装備です。

【取付予定設備】入浴後の水滴や湿気を排出し、カビの発生や臭いを抑制する換気乾燥暖房機。雨の日の洗濯物にも効果的です。 詳しくはスタッフへお問い合わせください。

【取付予定設備】温水洗浄便座付きのトイレです。汚れてもサッとひと拭きでお手入れ簡単。 詳しくはスタッフへお問い合わせください。
その他居室

◆1階和室(リフォーム中)|6帖の和室です。押入れも付いていて収納にも困りません。

◆1階和室(リフォーム中)|ぬくもりを感じられる和室でゆっくりとお寛ぎいただけます♪

◆1階和室(リフォーム中)|最近の住宅は和室が減ってきていますが、やはり1部屋でも和室があると落ち着きますよね。

◆1階和室(リフォーム中)|最近の住宅は和室が減ってきていますが、やはり1部屋でも和室があると落ち着きますよね。

◆2階洋室(リフォーム中)|家族が揃う団らんのひと時は楽しく、そしてゆったりと。

◆2階洋室(リフォーム中)|時代に合わせて使い方が変化するお部屋です。

◆2階洋室(リフォーム中)|各々が空間を共有しながら、思い思いの時間も気兼ねなく過ごせる♪

◆2階洋室(リフォーム中)|時代に合わせて使い方が変化するお部屋です。

◆2階洋室(リフォーム中)|お客様用寝具やクリスマスツリーなどの季節もの、冷暖房器具など使わないものを収納できるスペースとして活用できます。

◆2階洋室(リフォーム中)|家族でゆったり時間を過ごせるお部屋です。

◆2階洋室(リフォーム中)|各々が空間を共有しながら、思い思いの時間も気兼ねなく過ごせる♪

◆2階洋室(リフォーム中)|明るい日差しが降り注ぐお部屋に、居心地の良さを感じさせるコーディネート。

◆2階和室(リフォーム中)|書斎やお子様の勉強スペース、または近頃増えてきたリモートワークスペースとしてなど、ご家族それぞれの趣味・用途に合わせて自由にお使いいただけます。

◆2階和室(リフォーム中)|押し入れ付きの和室は、布団や季節物、日用品の収納に便利で、お部屋をスッキリ保てます。

◆2階和室(リフォーム中)|書斎やお子様の勉強スペース、または近頃増えてきたリモートワークスペースとしてなど、ご家族それぞれの趣味・用途に合わせて自由にお使いいただけます。

◆2階和室(リフォーム中)|6帖の和室です。客間にぴったり。押入れも付いていて収納にも困りません。
外観

◆外観(リフォーム中)|シンプルでいつまでも飽きのこないデザインが特徴的♪

◆外観(リフォーム中)|車通りが少なく、騒音も少ない為、お休みも安心して出来ます♪

◆外観(リフォーム中)|白を基調とした外観は周辺環境に馴染み安心感を与えてくれます♪

◆外観(リフォーム中)|閑静な住宅地に立地しています!コンビニ至近の為、気軽に買い物に行けます!

◆バルコニー(リフォーム中)|バルコニーで1日の疲れをリフレッシュするものありですよね!

◆お庭(リフォーム中)|庭があればガーデニングや家庭菜園などが楽しめ、季節の花や野菜を育てることで四季の移ろいが豊かに感じられお子さまの食育にもつながります。

◆バルコニー(リフォーム中)|バルコニーは、一度にたくさんの洗濯物が干せます。夜は望遠鏡を置いて天体観測なども楽しめそうなスペースですね。
設備・構造

【取付予定設備】間口の広いシンクなので家族の使った食器がまとめて置けます。スポンジ・洗剤置きも備え付け。 詳しくはスタッフへお問い合わせください。

【取付予定設備】ガスコンロは同時調理が可能な3口コンロ。ご飯の支度が時短になります。 詳しくはスタッフへお問い合わせください。

【取付予定設備】入浴後の水滴や湿気を排出し、カビの発生や臭いを抑制する換気乾燥暖房機。雨の日の洗濯物にも効果的です。 詳しくはスタッフへお問い合わせください。

【取付予定設備】髪の毛や石鹸カスなどをキャッチ。排水パイプの詰まりを防ぎ、いやな臭いの発生も抑えます。 詳しくはスタッフへお問い合わせください。

【取付予定設備】洗面台が収納ポケットになっているので、ヘアケア用品や歯ブラシなどでごちゃつきがちな洗面台周りがスッキリ片付きます。 詳しくはスタッフへお問い合わせください。

【取付予定設備】温水洗浄便座付きのトイレです。汚れてもサッとひと拭きでお手入れ簡単。 詳しくはスタッフへお問い合わせください。
物件詳細情報
| 物件名 | HMH川越市笠幡1期 | ||
|---|---|---|---|
| お問い |
10601380 | 価格 | 1,899万円 |
| 物件 |
戸建[中古] | 築年月 | 1998年06月築 |
| 住所 | 埼玉県川越市大字笠幡地図を見る地図を見る | 最寄駅 | 川越線笠幡駅 徒歩18分 |
| 間取 | 4LDK | 構造 / |
木造 / 2階 |
| 建物 |
91.08㎡ |
土地 |
110.01㎡ |
| 建ぺい率 | 60% | 容積率 | 200% |
| 土地 |
所有権 | 用途 |
無指定 |
| 建築 |
第H09認建川建001095号 | 接道 | 方向:西 間口:2.9m 幅員:4m (公道) |
| リフォーム |
■内装:キッチン,浴室,トイレ,洗面所,給湯器,内装全面(床、壁、天井、建具すべて)
(2026年05月完了予定)
|
||
| 設備 | |||
| 取引 |
仲介 | 引渡 |
相談 |
| 物件 |
空室中 | 駐車場 | 屋外1台 |
| 法令上の制限 | |||
| 備考 | *告知事項(心理的瑕疵)があります。*リフォーム着手:2026年3月中旬予定。リフォーム完工:2026年6月下旬予定。*司法書士は売主指定となります。*別途諸費用が掛かります。*図面と現況が異なる場合は、現況を優先します。*境界非明示となります。*建築確認番号:第H09認建川建001095号(平成9年9月9日)*検査済番号:第0144号(平成10年6月25日)*ハザードマップ非該当です。 |
||
| 情報 |
次回情報 更新予定日 |
||
| 取引条件の 有効期限 |
|||
周辺環境・地図









※地図は周辺エリアを表示しております。
※地図上に表示されている周辺環境情報に関しては最新の情報でない場合があり、また実際の所在地と位置が異なる場合がございます。
ローン シミュレーション
※枠内に数値をご入力ください
物件価格(※1)
諸費用
購入費用総額
自己資金
お借入金額
毎月返済分
賞与返済分(※2)
金利(※3)
借入年数
シミュレーションの結果
月々の支払金額
賞与月の支払金額
※2 賞与返済月は年2回(6ヵ月目、12ヵ月目、18ヵ月目...)を仮定しています。
※3 お借入期間、金利が変わらないものと仮定し、適用金利をお約束するものではありません。将来の金利動向により結果が異なる場合があります。
本シミュレーションは概算のためお借り入れの内容によっては実際の計算と異なる場合があります。
キャンペーン情報
お問い合わせ
この物件を見ている人に おすすめの物件



\◎諸費用コミコミ◎/
◆月々5万円台から♪
◆年収300万円から購入可能
\◎KEIAIのリフォーム◎/
当社が自信を持ってオススメする中古戸建です♪
*-------------------*
\◎おすすめポイント◎/
・住環境充実で子育て世代にもおすすめ
・収納完備で片付けはかどる♪
・日当たり良好!明るいお部屋
・家賃より安く憧れの庭付き戸建♪
\◎周辺環境◎/
・霞ヶ関西小学校(約1300m)
・霞ヶ関西中学校(約1500m)
・TAIRAYA川鶴店(約1500m)
*-------------------*
\◎本日ご見学可能◎/
「今から見たい!」「お一人でも安心」お気軽にお問い合わせ♪
住宅ローンのご相談も随時お任せください!