| 住所 | 埼玉県大里郡寄居町大字用土 |
|---|---|
| 交通 | 八高線用土駅まで 徒歩3分 |
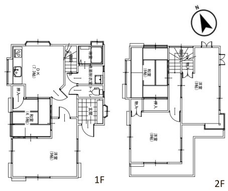
| 間取 | 5DK |
| 建物 |
96.05㎡ |
| 土地 |
182.55㎡ |
| 築年月 | 1992年08月築 |
駐車場
2台可
2階建て
システム
キッチン
はなまるハウス株式会社坂戸営業所スタッフおすすめポイント
間取

◆間取り|5DK
リビング・ダイニング

◆ダイニング|キッチンからダイニング全体まで見渡せるので、家事をしながらお子様を見守れます。

◆ダイニング|7.3帖あるので広々使えます!

◆ダイニング|ご家族でゆったり時間を過ごせるお部屋です♪
キッチン

◆キッチン|ご夫婦やお子様と並んでお料理をしても余裕のある、広々としたキッチンです。

◆キッチン|上下の収納があるため、片付けには困らず、大きな鍋やお皿も収納しやすいです。

【同社施工例】カラーが異なる場合がございます。調理がはかどるワイドカウンタータイプ。天板は傷がつきにくく美しい人造大理石仕上です。 詳しくはスタッフへお問い合わせください。

【同社施工例】間口の広いシンクなので家族の使った食器がまとめて置けます。スポンジ・洗剤置きも備え付け。 詳しくはスタッフへお問い合わせください。
水回り

◆洗面脱衣室|毎日使う洗面スペースや浴室は、モノがあふれてごちゃついていまいがち。スペースに収納すればスッキリ整います。心地よい空間で身支度したら、素敵な一日がはじまります。

◆浴室|壁がタイルで仕上げられた浴室は、レトロな雰囲気と清潔感を兼ね備えた空間。タイルならではのひんやり感と、手入れのしやすさも魅力です

【同社施工例】温水洗浄便座付きのトイレです。汚れてもサッとひと拭きでお手入れ簡単。節水仕様でしっかり洗浄できます。環境にやさしく経済的です。 詳しくはスタッフへお問い合わせください。

【同社施工例】温水洗浄便座付きのトイレです。汚れてもサッとひと拭きでお手入れ簡単。 詳しくはスタッフへお問い合わせください。
その他居室

◆1階和室|最近の住宅は和室が減ってきていますが、やはり1部屋でも和室があると落ち着きます♪

◆1階洋室|家族でゆったり時間を過ごせるお部屋です。

◆2階洋室|日当たり良好の為、居心地いい空間を演出できます!

◆1階和室|書斎やお子様の勉強スペース、または近頃増えてきたリモートワークスペースとしてなど、ご家族それぞれの趣味・用途に合わせて自由にお使いいただけます。

◆1階和室|1階西.5帖の和室。客間にぴったり。

◆2階洋室|各々が空間を共有しながら、思い思いの時間も気兼ねなく過ごせる♪

◆2階洋室|時代に合わせて使い方が変化するお部屋です。

◆2階和室|押し入れ付きの和室は、布団や季節物、日用品の収納に便利で、お部屋をスッキリ保てます。

◆2階和室|ぬくもりを感じられる和室でゆっくりとお寛ぎいただけます♪

◆2階和室|寝室にもオススメです!日当たり良好♪

◆2階和室|6帖の和室です。寝室にもオススメ!

◆2階洋室|家族が揃う団らんのひと時は楽しく、そしてゆったりと。

◆2階洋室|ほっと安らぐ落ち着いたナチュラルな色合い。ウッドの質感でお部屋も心もやさしいぬくもりに包まれます。
外観

◆外観|シンプルでいつまでも飽きのこないデザインが特徴的♪

◆外観|車2台分の駐車スペースを確保しております!

◆外観|清潔感のあるホワイトを用い、広がる青空や周囲の緑に映える印象的な邸宅景観を創出しました。

◆外観|どっしりとした佇まいで、家に帰るたび安心感を与えてくれます。

◆外観|車通りが少なく、騒音も少ない為、お休みも安心して出来ます♪

◆外観|白い外観が光を反射し、お家全体を明るく大きい印象にしてくれます♪

◆外観|現地は駅チカでありながらも、落ち着きを感じさせる住宅街の一角。

◆外観|前面の建物から距離がある為、日当たり良好♪

◆駐車場|敷地内に駐車スペースを確保しており、お車をお持ちの方にも安心です。

◆駐車場|並列駐車にて2台可能です!車幅も取れる為、出入りも安心です!

◆お庭|庭があればガーデニングや家庭菜園などが楽しめ、季節の花や野菜を育てることで四季の移ろいが豊かに感じられお子さまの食育にもつながります。

◆バルコニー|バルコニーは、一度にたくさんの洗濯物が干せます。夜は望遠鏡を置いて天体観測なども楽しめそうなスペースですね。
設備・構造

【同社施工例】温水洗浄便座付きのトイレです。汚れてもサッとひと拭きでお手入れ簡単。節水仕様でしっかり洗浄できます。環境にやさしく経済的です。 詳しくはスタッフへお問い合わせください。

【同社施工例】温水洗浄便座付きのトイレです。汚れてもサッとひと拭きでお手入れ簡単。 詳しくはスタッフへお問い合わせください。

【同社施工例】カラーが異なる場合がございます。調理がはかどるワイドカウンタータイプ。天板は傷がつきにくく美しい人造大理石仕上です。 詳しくはスタッフへお問い合わせください。

【同社施工例】間口の広いシンクなので家族の使った食器がまとめて置けます。スポンジ・洗剤置きも備え付け。 詳しくはスタッフへお問い合わせください。

【同社施工例】風量が弱・強と切替可能なレンジフード。調理中の煙をしっかり吸い込みます。 詳しくはスタッフへお問い合わせください。

【同社施工例】ガスコンロは同時調理が可能な3口コンロ。ご飯の支度が時短になります。 詳しくはスタッフへお問い合わせください。

【同社施工例】天板は傷がつきにくく美しい人造大理石仕上です。 詳しくはスタッフへお問い合わせください。

【同社施工例】ベンチ付の浴槽は、小さなお子様との入浴も安心です。節水効果もあり、ゆったりとしたバスタイムを演出。 詳しくはスタッフへお問い合わせください。

【同社施工例】入浴後の水滴や湿気を排出し、カビの発生や臭いを抑制する換気乾燥暖房機。雨の日の洗濯物にも効果的です。 詳しくはスタッフへお問い合わせください。

【同社施工例】髪の毛や石鹸カスなどをキャッチ。排水パイプの詰まりを防ぎ、いやな臭いの発生も抑えます。 詳しくはスタッフへお問い合わせください。

【同社施工例】浴室カウンターは軽く取り外しもラクラク。お掃除の手間も省けます! 詳しくはスタッフへお問い合わせください。

【同社施工例】水や石鹸の泡などで滑りやすくなる床は、微細な凹凸により滑りにくく安全なプレーンフロアを採用。 詳しくはスタッフへお問い合わせください。

【同社施工例】洗面台が収納ポケットになっているので、ヘアケア用品や歯ブラシなどでごちゃつきがちな洗面台周りがスッキリ片付きます。 詳しくはスタッフへお問い合わせください

【同社施工例】ヘアケア用品や歯ブラシなどでごちゃつきがちな洗面台周りがスッキリ片付きます。詳しくはスタッフへお問い合わせください。

【同社施工例】洗面台には収納付きで、モノが多くても安心です! 詳しくはスタッフへお問い合わせください。
物件詳細情報
| 物件名 | HMH大里郡寄居町2期 | ||
|---|---|---|---|
| お問い |
10601420 | 価格 | 799万円 |
| 物件 |
戸建[中古] | 築年月 | 1992年08月築 |
| 住所 | 埼玉県大里郡寄居町大字用土地図を見る地図を見る | 最寄駅 | 八高線用土駅 徒歩3分 |
| 間取 | 5DK | 構造 / |
木造 / 2階 |
| 建物 |
96.05㎡ |
土地 |
182.55㎡ |
| 建ぺい率 | 60% | 容積率 | 200% |
| 土地 |
所有権 | 用途 |
無指定 |
| 建築 |
第2529号 | 接道 | 方向:南東 間口:13m 幅員:4m (公道) |
| 設備 | |||
| 取引 |
売主 | 引渡 |
相談 |
| 物件 |
空室中 | 駐車場 | 屋外2台 |
| 法令上の制限 | |||
| 備考 | *司法書士は売主指定となります。*図面と現況が異なる場合は、現況を優先致します。*境界非明示となります。測量等を希望される場合は、買主負担となります。*建築確認番号:第2529号(平成2年12月20日)*検査済番号:第277号(平成4年8月19日)*表記価格はリフォーム工事着手前の販売価格になります。リフォーム工事着手後、販売価格に変動があります。*ハザードマップ非該当です。*徒歩での所要時間は80mを1分にて記載しております。 |
||
| 情報 |
次回情報 更新予定日 |
||
| 取引条件の 有効期限 |
|||
周辺環境・地図









※地図は周辺エリアを表示しております。
※地図上に表示されている周辺環境情報に関しては最新の情報でない場合があり、また実際の所在地と位置が異なる場合がございます。
ローン シミュレーション
※枠内に数値をご入力ください
物件価格(※1)
諸費用
購入費用総額
自己資金
お借入金額
毎月返済分
賞与返済分(※2)
金利(※3)
借入年数
シミュレーションの結果
月々の支払金額
賞与月の支払金額
※2 賞与返済月は年2回(6ヵ月目、12ヵ月目、18ヵ月目...)を仮定しています。
※3 お借入期間、金利が変わらないものと仮定し、適用金利をお約束するものではありません。将来の金利動向により結果が異なる場合があります。
本シミュレーションは概算のためお借り入れの内容によっては実際の計算と異なる場合があります。
キャンペーン情報
お問い合わせ
この物件を見ている人に おすすめの物件




\◎諸費用コミコミ◎/
◆月々2万円台から♪
◆年収200万円台から購入可能\◎はなまるハウスのリフォーム◎/
当社が自信を持ってオススメする売主物件です♪
*-------------------*
\◎おすすめポイント◎/
・住環境充実で子育て世代にもおすすめ
・収納完備で片付けはかどる♪
・日当たり良好!明るいお部屋
・閑静な住宅街で安心♪
・家賃より安く憧れの庭付き戸建♪
\◎周辺環境◎/
・用土小学校(約850m)
・寄居中学校(約3500m)
・ベイシア寄居北店(約2900m)
*-------------------*
\◎本日ご見学可能◎/
「今から見たい!」「お一人でも安心」お気軽にお問い合わせ♪
住宅ローンのご相談も随時お任せください!