| 住所 | 埼玉県熊谷市久下 |
|---|---|
| 交通 | 高崎線熊谷駅まで 徒歩17分 |
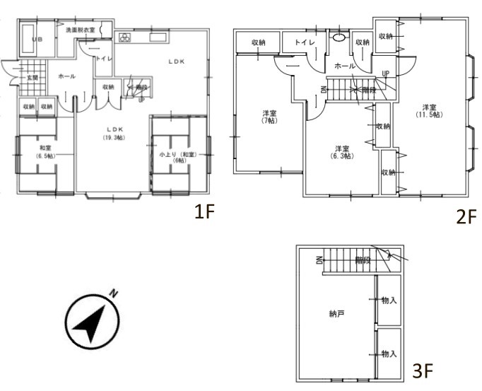
| 間取 | 5LDK+S |
| 建物 |
146.14㎡ |
| 土地 |
167.12㎡ |
| 築年月 | 1994年03月築 |
駐車場
3台以上
浴室1坪以上
3階建て以上
2沿線以上
利用可
はなまるハウス株式会社坂戸営業所スタッフおすすめポイント
間取

◆間取り|5SLDK
リビング・ダイニング

◆リビング|家族が集まる団らんのひととき、ひとりでリラックスしたい夜、ゲストを招いてわいわい過ごす休日、どんなシーンにも対応できるリビングです。

◆リビング|ぬくもりを感じる親しみやすいコーディネート。インテリアグリーンを取り入れて緑あふれる明るいリビングにしても良いですね。

◆リビング|木目調の壁とフローリングが落ち着いた雰囲気を演出するリビングスペース。

◆リビング|リビングは陽光が差し込み、風が吹き抜け、とっておきのくつろぎ空間。寛ぎのリビングとお食事のダイニングスペースを自然に分けたプランでメリハリのある生活ができます。

◆リビング|ナチュラルな質感で魅せる、くつろぎの時間。ゆっくりとした時間が流れるリビングで、家族だんらんのひと時をお過ごしいただけます。

◆リビング|約19帖のリビングは、ソファーやダイニングテーブルを置いても十分な広さです♪
キッチン

◆キッチン|ご夫婦やお子様と並んでお料理をしても余裕のある、広々としたキッチンです。

◆キッチン|上下の収納があるため、片付けには困らず、大きな鍋やお皿も収納しやすいです。

【同社施工例】カラーが異なる場合がございます。調理がはかどるワイドカウンタータイプ。天板は傷がつきにくく美しい人造大理石仕上です。 詳しくはスタッフへお問い合わせください。

【同社施工例】間口の広いシンクなので家族の使った食器がまとめて置けます。スポンジ・洗剤置きも備え付け。 詳しくはスタッフへお問い合わせください。
水回り

◆洗面脱衣室|毎日使う洗面スペースや浴室は、モノがあふれてごちゃついていまいがち。スペースに収納すればスッキリ整います。心地よい空間で身支度したら、素敵な一日がはじまります。

◆浴室|お子さんと一緒にゆっくりと入れる、1坪サイズの広い浴室。一日の疲れを取りながら、学校や友だちの話に耳を傾ける、親子の大切なひとときが過ごせる。浴室換気乾燥機、保温浴槽も標準装備です。

【同社施工例】温水洗浄便座付きのトイレです。汚れてもサッとひと拭きでお手入れ簡単。節水仕様でしっかり洗浄できます。環境にやさしく経済的です。 詳しくはスタッフへお問い合わせください。

【同社施工例】温水洗浄便座付きのトイレです。汚れてもサッとひと拭きでお手入れ簡単。 詳しくはスタッフへお問い合わせください。
その他居室

◆1階和室|書斎やお子様の勉強スペース、または近頃増えてきたリモートワークスペースとしてなど、ご家族それぞれの趣味・用途に合わせて自由にお使いいただけます。

◆1階和室|お子様のお昼寝スペースや、洗濯物をたたむのに最適です♪

◆1階和室|扉付きの和室なのでプライベートな空間にもなります。

◆1階和室|ぬくもりを感じられる和室でゆっくりとお寛ぎいただけます♪

◆1階和室|書斎やお子様の勉強スペース、または近頃増えてきたリモートワークスペースとしてなど、ご家族それぞれの趣味・用途に合わせて自由にお使いいただけます。

◆2階和室|最近の住宅は和室が減ってきていますが、やはり1部屋でも和室があると落ち着きますよね。

◆1階和室|押し入れ付きの和室は、布団や季節物、日用品の収納に便利で、お部屋をスッキリ保てます。

◆1階和室|ぬくもりを感じられる和室でゆっくりとお寛ぎいただけます♪

◆1階和室|最近の住宅は和室が減ってきていますが、やはり1部屋でも和室があると落ち着きます♪

◆1階和室|6帖の和室です。リビングを通らなくても出入りができるので、客間にぴったり。押入れも付いていて収納にも困りません。

◆1階和室|客間やリビングの延長としても最適です◎

◆2階洋室|お子様の一人部屋にピッタリな洋室。やっぱりお子さまはみんな『自分の部屋』には憧れを持ちます。そんな憧れのお部屋を持たせてあげられますね。

◆2階洋室|時代に合わせて使い方が変化するお部屋です。

◆2階洋室|家族が揃う団らんのひと時は楽しく、そしてゆったりと。

◆2階洋室|家族でゆったり時間を過ごせるお部屋です。

◆2階洋室|時代に合わせて使い方が変化するお部屋です。

◆2階洋室|ほっと安らぐ落ち着いたナチュラルな色合い。ウッドの質感でお部屋も心もやさしいぬくもりに包まれます。

◆2階洋室|各々が空間を共有しながら、思い思いの時間も気兼ねなく過ごせる♪

◆2階洋室|家族が揃う団らんのひと時は楽しく、そしてゆったりと。

◆2階洋室|各々が空間を共有しながら、思い思いの時間も気兼ねなく過ごせる♪
外観

◆外観|騒音が少なく、落ち着いた環境で閑静な住宅街です。

◆外観|シンプルでいつまでも飽きのこないデザインが特徴的♪

◆外観|どっしりとした佇まいで、家に帰るたび安心感を与えてくれます。

◆現地|現地は、日常に便利なスーパーやコンビニなどの商業施設が身近に揃う便利な立地です。引越し直後は何かとお世話になりそうな商業施設も、車でちょっと行ったところにある嬉しい周辺環境です。

◆外観|前面の建物から距離がある為、日当たり良好♪

◆外観|車3-4台(並列)分の駐車スペースを確保しております!

◆駐車場|3-4台(並列)で駐車可能です!お庭もあるので趣味も増えそうです♪

◆バルコニー|バルコニーは、一度にたくさんの洗濯物が干せます。夜は望遠鏡を置いて天体観測なども楽しめそうなスペースですね。

◆バルコニー|屋根付きのワイドバルコニー!急な雨でも安心です!

◆駐車場|3-4台(並列)で駐車可能です!お庭もあるので趣味も増えそうです♪
設備・構造

【同社施工例】温水洗浄便座付きのトイレです。汚れてもサッとひと拭きでお手入れ簡単。節水仕様でしっかり洗浄できます。環境にやさしく経済的です。 詳しくはスタッフへお問い合わせください。

【同社施工例】温水洗浄便座付きのトイレです。汚れてもサッとひと拭きでお手入れ簡単。 詳しくはスタッフへお問い合わせください。

【同社施工例】カラーが異なる場合がございます。調理がはかどるワイドカウンタータイプ。天板は傷がつきにくく美しい人造大理石仕上です。 詳しくはスタッフへお問い合わせください。

【同社施工例】間口の広いシンクなので家族の使った食器がまとめて置けます。スポンジ・洗剤置きも備え付け。 詳しくはスタッフへお問い合わせください。

【同社施工例】風量が弱・強と切替可能なレンジフード。調理中の煙をしっかり吸い込みます。 詳しくはスタッフへお問い合わせください。

【同社施工例】ガスコンロは同時調理が可能な3口コンロ。ご飯の支度が時短になります。 詳しくはスタッフへお問い合わせください。

【同社施工例】天板は傷がつきにくく美しい人造大理石仕上です。 詳しくはスタッフへお問い合わせください。

【同社施工例】ベンチ付の浴槽は、小さなお子様との入浴も安心です。節水効果もあり、ゆったりとしたバスタイムを演出。 詳しくはスタッフへお問い合わせください。

【同社施工例】入浴後の水滴や湿気を排出し、カビの発生や臭いを抑制する換気乾燥暖房機。雨の日の洗濯物にも効果的です。 詳しくはスタッフへお問い合わせください。

【同社施工例】髪の毛や石鹸カスなどをキャッチ。排水パイプの詰まりを防ぎ、いやな臭いの発生も抑えます。 詳しくはスタッフへお問い合わせください。

【同社施工例】浴室カウンターは軽く取り外しもラクラク。お掃除の手間も省けます! 詳しくはスタッフへお問い合わせください。

【同社施工例】水や石鹸の泡などで滑りやすくなる床は、微細な凹凸により滑りにくく安全なプレーンフロアを採用。 詳しくはスタッフへお問い合わせください。

【同社施工例】洗面台が収納ポケットになっているので、ヘアケア用品や歯ブラシなどでごちゃつきがちな洗面台周りがスッキリ片付きます。 詳しくはスタッフへお問い合わせください

【同社施工例】ヘアケア用品や歯ブラシなどでごちゃつきがちな洗面台周りがスッキリ片付きます。詳しくはスタッフへお問い合わせください。

【同社施工例】洗面台には収納付きで、モノが多くても安心です! 詳しくはスタッフへお問い合わせください。
物件詳細情報
| 物件名 | HMH熊谷市久下1期 | ||
|---|---|---|---|
| お問い |
10601441 | 価格 | 1,799万円 |
| 物件 |
戸建[中古] | 築年月 | 1994年03月築 |
| 住所 | 埼玉県熊谷市久下地図を見る地図を見る | 最寄駅 | 高崎線熊谷駅 徒歩17分 |
| 間取 | 5LDK+S | 構造 / |
木造 / 3階 |
| 建物 |
146.14㎡ |
土地 |
167.12㎡ |
| 建ぺい率 | 50% | 容積率 | 80% |
| 土地 |
所有権 | 用途 |
第一種低層住居専用地域 |
| 建築 |
第728号 | 接道 | 方向:南 間口:13.8m 幅員:4.2m (公道) /方向:西 間口:12m 幅員:4.2m (公道) |
| 設備 | |||
| 取引 |
売主 | 引渡 |
相談 |
| 物件 |
空室中 | 駐車場 | 屋外4台 |
| 法令上の制限 | |||
| 備考 | |||
| 情報 |
次回情報 更新予定日 |
||
| 取引条件の 有効期限 |
|||
周辺環境・地図









※地図は周辺エリアを表示しております。
※地図上に表示されている周辺環境情報に関しては最新の情報でない場合があり、また実際の所在地と位置が異なる場合がございます。
ローン シミュレーション
※枠内に数値をご入力ください
物件価格(※1)
諸費用
購入費用総額
自己資金
お借入金額
毎月返済分
賞与返済分(※2)
金利(※3)
借入年数
シミュレーションの結果
月々の支払金額
賞与月の支払金額
※2 賞与返済月は年2回(6ヵ月目、12ヵ月目、18ヵ月目...)を仮定しています。
※3 お借入期間、金利が変わらないものと仮定し、適用金利をお約束するものではありません。将来の金利動向により結果が異なる場合があります。
本シミュレーションは概算のためお借り入れの内容によっては実際の計算と異なる場合があります。
キャンペーン情報
お問い合わせ
この物件を見ている人に おすすめの物件


\◎諸費用コミコミ◎/
◆月々5万円台から♪
◆年収400万円台から購入可能\◎はなまるハウスのリフォーム◎/
当社が自信を持ってオススメする売主物件です♪
*-------------------*
\◎おすすめポイント◎/
・住環境充実で子育て世代にもおすすめ
・収納完備で片付けはかどる♪
・日当たり良好!明るいお部屋
・閑静な住宅街で安心♪
・家賃より安く憧れの庭付き戸建♪
\◎周辺環境◎/
・久下小学校(約2700m)
・熊谷東中学校(約3100m)
・ベルク熊谷銀座店(約1100m)
*-------------------*
\◎本日ご見学可能◎/
「今から見たい!」「お一人でも安心」お気軽にお問い合わせ♪
住宅ローンのご相談も随時お任せください!