| 住所 | 埼玉県入間郡毛呂山町大字小田谷 |
|---|---|
| 交通 | 八高線毛呂駅まで 徒歩10分 |
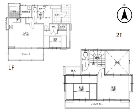
| 間取 | 3LDK |
| 建物 |
86.11㎡ |
| 土地 |
165.31㎡ |
| 築年月 | 1983年12月築 |
駐車場
2台可
2階建て
システム
キッチン
浴室1坪以上
全居室
6畳以上
ケイアイエポックメイキング株式会社坂戸店スタッフおすすめポイント
間取

◆間取り|3LDK
キッチン

【取付予定設備】間口の広いシンクなので家族の使った食器がまとめて置けます。スポンジ・洗剤置きも備え付け。 詳しくはスタッフへお問い合わせください。
水回り

【取付予定設備】入浴後の水滴や湿気を排出し、カビの発生や臭いを抑制する換気乾燥暖房機。雨の日の洗濯物にも効果的です。 詳しくはスタッフへお問い合わせください。

【取付予定設備】温水洗浄便座付きのトイレです。汚れてもサッとひと拭きでお手入れ簡単。 詳しくはスタッフへお問い合わせください。
外観

◆外観|車通りが少なく、騒音も少ない為、お休みも安心して出来ます♪

◆外観|白い外観が光を反射し、お家全体を明るく大きい印象にしてくれます♪

◆外観|閑静な住宅地に立地しています!コンビニ至近の為、気軽に買い物に行けます!

◆外観|どっしりとした佇まいで、家に帰るたび安心感を与えてくれます。

◆駐車場|敷地内に駐車スペースを確保しており、お車をお持ちの方にも安心です。

◆駐車場|縦列駐車にて最大2台可能です!

◆外観|騒音が少なく、落ち着いた環境で閑静な住宅街です。

◆外観|前面の建物から距離がある為、日当たり良好♪
設備・構造

【取付予定設備】間口の広いシンクなので家族の使った食器がまとめて置けます。スポンジ・洗剤置きも備え付け。 詳しくはスタッフへお問い合わせください。

【取付予定設備】ガスコンロは同時調理が可能な3口コンロ。ご飯の支度が時短になります。 詳しくはスタッフへお問い合わせください。

【取付予定設備】入浴後の水滴や湿気を排出し、カビの発生や臭いを抑制する換気乾燥暖房機。雨の日の洗濯物にも効果的です。 詳しくはスタッフへお問い合わせください。

【取付予定設備】髪の毛や石鹸カスなどをキャッチ。排水パイプの詰まりを防ぎ、いやな臭いの発生も抑えます。 詳しくはスタッフへお問い合わせください。

【取付予定設備】洗面台が収納ポケットになっているので、ヘアケア用品や歯ブラシなどでごちゃつきがちな洗面台周りがスッキリ片付きます。 詳しくはスタッフへお問い合わせください。

【取付予定設備】温水洗浄便座付きのトイレです。汚れてもサッとひと拭きでお手入れ簡単。 詳しくはスタッフへお問い合わせください。
物件詳細情報
| 物件名 | KEM入間郡毛呂山町1期 | ||
|---|---|---|---|
| お問い |
10601600 | 価格 | 1,349万円 |
| 物件 |
戸建[中古] | 築年月 | 1983年12月築 |
| 住所 | 埼玉県入間郡毛呂山町大字小田谷地図を見る地図を見る | 最寄駅 | 八高線毛呂駅 徒歩10分 |
| 間取 | 3LDK | 構造 / |
木造 / 2階 |
| 建物 |
86.11㎡ |
土地 |
165.31㎡ |
| 建ぺい率 | 60% | 容積率 | 200% |
| 土地 |
所有権 | 用途 |
第一種住居地域 |
| 建築 |
第1612号 | 接道 | 方向:北西 間口:12.7m 幅員:4m (公道) |
| リフォーム |
■外装:その他
《サンルーム解体》
(2026年05月)
■内装:キッチン,浴室,トイレ,洗面所,給湯器,壁,床,建具 (2026年05月完了予定) |
||
| 設備 | |||
| 取引 |
売主 | 引渡 |
相談 |
| 物件 |
空室中 | 駐車場 | 屋外2台 |
| 法令上の制限 | |||
| 備考 | *告知事項(心理的瑕疵)があります。*土砂災害警戒区域(イエローゾーン)に該当しております。*リフォーム着手:2026年2月中旬予定。リフォーム完工:2026年5月末日予定。*司法書士は売主指定となります。*図面と現況が異なる場合は、現況を優先致します。*境界非明示となります。測量等希望される場合は、買主負担となります*建築確認番号:第1612号(昭和58年9月14日)*ハザードマップ非該当です。 |
||
| 情報 |
次回情報 更新予定日 |
||
| 取引条件の 有効期限 |
|||
周辺環境・地図









※地図は周辺エリアを表示しております。
※地図上に表示されている周辺環境情報に関しては最新の情報でない場合があり、また実際の所在地と位置が異なる場合がございます。
ローン シミュレーション
※枠内に数値をご入力ください
物件価格(※1)
諸費用
購入費用総額
自己資金
お借入金額
毎月返済分
賞与返済分(※2)
金利(※3)
借入年数
シミュレーションの結果
月々の支払金額
賞与月の支払金額
※2 賞与返済月は年2回(6ヵ月目、12ヵ月目、18ヵ月目...)を仮定しています。
※3 お借入期間、金利が変わらないものと仮定し、適用金利をお約束するものではありません。将来の金利動向により結果が異なる場合があります。
本シミュレーションは概算のためお借り入れの内容によっては実際の計算と異なる場合があります。
キャンペーン情報
お問い合わせ
この物件を見ている人に おすすめの物件



\◎諸費用コミコミ◎/
◆月々2万円台から♪
◆年収200万円から購入可能
\◎KEIAIのリフォーム◎/
当社が自信を持ってオススメする売主物件です♪
*-------------------*
\◎おすすめポイント◎/
・住環境充実で子育て世代にもおすすめ
・収納完備で片付けはかどる♪
・日当たり良好!明るいお部屋
・閑静な住宅街で安心♪
・家賃より安く憧れの庭付き戸建♪
\◎周辺環境◎/
・毛呂山小学校(約950m)
・毛呂山中学校(約1200m)
・ベルク毛呂山店(約1500m)
*-------------------*
\◎本日ご見学可能◎/
「今から見たい!」「お一人でも安心」お気軽にお問い合わせ♪
住宅ローンのご相談も随時お任せください!