×
| 住所 | 埼玉県東松山市桜山台 |
|---|---|
| 交通 | 東武東上線高坂駅まで 徒歩33分 |
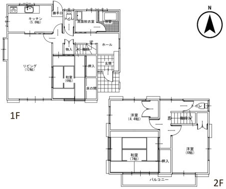
| 間取 | 4LDK |
| 建物 |
103.5㎡ |
| 土地 |
235.8㎡ |
| 築年月 | 1985年03月築 |
駐車場
2台可
2階建て
都市ガス
南向き
浴室乾燥機
対面キッチン
スーパー徒歩
10分以内
システム
キッチン
浴室1坪以上
小学校徒歩
10分以内
ケイアイエポックメイキング株式会社坂戸店スタッフおすすめポイント
間取

◆間取り|4LDK
外観

◆外観(リフォーム中)|シンプルでいつまでも飽きのこないデザインが特徴的♪

◆外観(リフォーム中)|どっしりとした佇まいで、家に帰るたび安心感を与えてくれます。
物件詳細情報
| 物件名 | KEM東松山市桜山台1期 | ||
|---|---|---|---|
| お問い |
10601740 | 価格 | 2,049万円 |
| 物件 |
戸建[中古] | 築年月 | 1985年03月築 |
| 住所 | 埼玉県東松山市桜山台地図を見る地図を見る | 最寄駅 | 東武東上線高坂駅 徒歩33分 |
| 間取 | 4LDK | 構造 / |
木造 / 2階 |
| 建物 |
103.5㎡ |
土地 |
235.8㎡ |
| 建ぺい率 | 50% | 容積率 | 100% |
| 土地 |
所有権 | 用途 |
第一種中高層住居専用地域 |
| 建築 |
第74号 | 接道 | 方向:南 間口:13.5m 幅員:6m (公道) |
| リフォーム |
■外装:その他
《駐車拡張、玄関ドア》
(2026年07月)
■内装:キッチン,浴室,トイレ,洗面所,給湯器,給排水管,内装全面(床、壁、天井、建具すべて) (2026年07月完了予定) |
||
| 設備 | |||
| 取引 |
売主 | 引渡 |
相談 |
| 物件 |
空室中 | 駐車場 | 屋外2台 |
| 法令上の制限 | |||
| 備考 | *リフォーム着手:2026年4月下旬予定 リフォーム完工:2026年7月下旬予定*告知事項(空き巣被害)があります*司法書士は売主指定となります*別途諸費用が掛かります*図面と現況が異なる場合は、現況を優先します。*境界非明示となります測量等を希望される場合は、買主負担となります*建築確認番号:第74号(昭和59年10月29日)*検査済番号:第62号(昭和60年3月6日)*ハザードマップ非該当です |
||
| 情報 |
次回情報 更新予定日 |
||
| 取引条件の 有効期限 |
|||
周辺環境・地図

東松山市立白山中学校(650m)

東松山市立桜山小学校(750m)

東松山市立高坂図書館(2100m)

ピオニウォーク東松山(3600m)

ケーズデンキピオニウォーク東松山(3300m)

マミーマート高坂店(2000m)

武蔵野銀行 高坂支店(2600m)

セブンイレブン高坂駅西口店(2400m)

ガスト東松山高坂店(1400m)
※地図は周辺エリアを表示しております。
※地図上に表示されている周辺環境情報に関しては最新の情報でない場合があり、また実際の所在地と位置が異なる場合がございます。
ローン シミュレーション
結果を見る ▼
※枠内に数値をご入力ください
物件価格(※1)
万円
諸費用
万円
※物件価格の約%で概算諸費用を計算しています。
購入費用総額
万円
自己資金
万円
お借入金額
万円
毎月返済分
万円
賞与返済分(※2)
万円
金利(※3)
%
借入年数
シミュレーションの結果
月々の支払金額
円
賞与月の支払金額
円
※1 金融機関の審査の結果によって借入ができない場合があります。
※2 賞与返済月は年2回(6ヵ月目、12ヵ月目、18ヵ月目...)を仮定しています。
※3 お借入期間、金利が変わらないものと仮定し、適用金利をお約束するものではありません。将来の金利動向により結果が異なる場合があります。
本シミュレーションは概算のためお借り入れの内容によっては実際の計算と異なる場合があります。
※2 賞与返済月は年2回(6ヵ月目、12ヵ月目、18ヵ月目...)を仮定しています。
※3 お借入期間、金利が変わらないものと仮定し、適用金利をお約束するものではありません。将来の金利動向により結果が異なる場合があります。
本シミュレーションは概算のためお借り入れの内容によっては実際の計算と異なる場合があります。
キャンペーン情報
お問い合わせ
この物件を見ている人に おすすめの物件


\◎諸費用コミコミ◎/
◆月々3万円台から♪
◆年収200万円から購入可能
\◎KEIAIのリフォーム◎/
当社が自信を持ってオススメする売主物件です♪
*-------------------*
\◎おすすめポイント◎/
・住環境充実で子育て世代にもおすすめ
・収納完備で片付けはかどる♪
・日当たり良好!明るいお部屋
・閑静な住宅街で安心♪
・家賃より安く憧れの庭付き戸建♪
\◎周辺環境◎/
・桜山小学校(約650m)
・白山中学校(約750m)
・マミーマート松風台店(約650m)
*-------------------*
\◎本日ご見学可能◎/
「今から見たい!」「お一人でも安心」お気軽にお問い合わせ♪
住宅ローンのご相談も随時お任せください!