| 住所 | 埼玉県入間郡越生町大字西和田 |
|---|---|
| 交通 | 東武越生線越生駅まで 徒歩9分 |
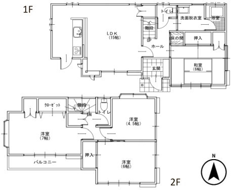
| 間取 | 4LDK |
| 建物 |
93.56㎡ |
| 土地 |
125.99㎡ |
| 築年月 | 1996年02月築 |
2階建て
浴室乾燥機
対面キッチン
駐車場
3台以上
浴室1坪以上
ケイアイエポックメイキング株式会社坂戸店スタッフおすすめポイント
間取

◆間取り|4LDK
リビング・ダイニング

◆リビング(リフォーム中)|リフォーム中もご案内可能です。フローリング張替します。

◆リビング(リフォーム中)|リフォーム中もご案内可能です。フローリング張替します。

◆リビング(リフォーム中)|リフォーム中もご案内可能です。フローリング張替します。

◆リビング(リフォーム中)|リフォーム中もご案内可能です。フローリング張替します。

◆リビング(リフォーム中)|リフォーム中もご案内可能です。フローリング張替します。

◆リビング(リフォーム中)|リフォーム中もご案内可能です。フローリング張替します。
キッチン

◆キッチン(リフォーム中)|リフォーム中もご案内可能です。キッチン新設します。
水回り

◆洗面脱衣室(リフォーム中)|リフォーム中もご案内可能です。洗面所新設します。

◆浴室(リフォーム中)|リフォーム中もご案内可能です。浴室新設します。
その他居室

◆1階和室(リフォーム中)|リフォーム中もご案内可能です。畳表替えします。

◆1階和室(リフォーム中)|リフォーム中もご案内可能です。畳表替えします。

◆1階和室(リフォーム中)|リフォーム中もご案内可能です。畳表替えします。

◆1階和室(リフォーム中)|リフォーム中もご案内可能です。畳表替えします。

◆1階和室(リフォーム中)|リフォーム中もご案内可能です。畳表替えします。

◆2階洋室(リフォーム中)|リフォーム中もご案内可能です。

◆2階洋室(リフォーム中)|リフォーム中もご案内可能です。

◆2階洋室(リフォーム中)|リフォーム中もご案内可能です。

◆2階洋室|各々が空間を共有しながら、思い思いの時間も気兼ねなく過ごせる♪

◆2階洋室(リフォーム中)|リフォーム中もご案内可能です。

◆2階洋室(リフォーム中)|リフォーム中もご案内可能です。

◆2階洋室(リフォーム中)|リフォーム中もご案内可能です。

◆2階洋室(リフォーム中)|リフォーム中もご案内可能です。

◆2階洋室(リフォーム中)|リフォーム中もご案内可能です。

◆2階洋室(リフォーム中)|リフォーム中もご案内可能です。

◆2階洋室(リフォーム中)|リフォーム中もご案内可能です。
外観

◆外観(リフォーム中)|リフォーム中でもご案内可能です。

◆駐車場(リフォーム中)|縦列2台駐車可能です!車種により並列2台も可能です。

◆外観(リフォーム中)|リフォーム中でもご案内可能です。

◆外観(リフォーム中)|リフォーム中でもご案内可能です。

◆駐車場(リフォーム中)|敷地内に駐車スペースを確保しており、お車をお持ちの方にも安心です。

◆バルコニー(リフォーム中)|リフォーム中でもご案内可能です。

◆お庭(リフォーム中)|リフォーム中でもご案内可能です。
物件詳細情報
| 物件名 | KEM入間郡越生町1期 | ||
|---|---|---|---|
| お問い |
10601840 | 価格 | 1,599万円 |
| 物件 |
戸建[中古] | 築年月 | 1996年02月築 |
| 住所 | 埼玉県入間郡越生町大字西和田地図を見る地図を見る | 最寄駅 | 東武越生線越生駅 徒歩9分 八高線越生駅 徒歩9分 |
| 間取 | 4LDK | 構造 / |
木造 / 2階 |
| 建物 |
93.56㎡ |
土地 |
125.99㎡ |
| 建ぺい率 | 60% | 容積率 | 200% |
| 土地 |
所有権 | 用途 |
無指定 |
| 建築 |
H07認建飯土001266号 | 接道 | 方向:西 間口:9m 幅員:4m (公道) /方向:北 間口:12.8m 幅員:1.3m (公道) |
| リフォーム |
■外装:その他
《ブロック解体》
(2026年08月)
■内装:キッチン,浴室,トイレ,洗面所,給湯器,給排水管,内装全面(床、壁、天井、建具すべて) (2026年08月完了予定) |
||
| 設備 | |||
| 取引 |
売主 | 引渡 |
相談 |
| 物件 |
空室中 | 駐車場 | 屋外3台 |
| 備考 | *リフォーム着手:2026年5月中旬予定。リフォーム完工:2026年8月中旬予定。*別途諸費用がかかります。*司法書士は売主指定となります。*図面と現況が異なる場合は、現況を優先します。*境界非明示となります。測量等を希望される場合は、買主負担となります。*建築確認番号:H07認建飯土001266号(平成7年9月28日)*ハザードマップ非該当です。 |
||
| 情報 |
次回情報 更新予定日 |
||
| 取引条件の 有効期限 |
|||
周辺環境・地図









※地図は周辺エリアを表示しております。
※地図上に表示されている周辺環境情報に関しては最新の情報でない場合があり、また実際の所在地と位置が異なる場合がございます。
ローン シミュレーション
※枠内に数値をご入力ください
物件価格(※1)
諸費用
購入費用総額
自己資金
お借入金額
毎月返済分
賞与返済分(※2)
金利(※3)
借入年数
シミュレーションの結果
月々の支払金額
賞与月の支払金額
※2 賞与返済月は年2回(6ヵ月目、12ヵ月目、18ヵ月目...)を仮定しています。
※3 お借入期間、金利が変わらないものと仮定し、適用金利をお約束するものではありません。将来の金利動向により結果が異なる場合があります。
本シミュレーションは概算のためお借り入れの内容によっては実際の計算と異なる場合があります。
キャンペーン情報
お問い合わせ
この物件を見ている人に おすすめの物件



\◎諸費用コミコミ◎/
◆月々4万円台から♪
◆年収300万円から購入可能
\◎KEIAIのリフォーム◎/
当社が自信を持ってオススメする売主物件です♪
*-------------------*
\◎おすすめポイント◎/
・住環境充実で子育て世代にもおすすめ
・収納完備で片付けはかどる♪
・日当たり良好!明るいお部屋
・閑静な住宅街で安心♪
・家賃より安く憧れの庭付き戸建♪
\◎周辺環境◎/
・越生小学校(約1100m)
・越生中学校(約2600m)
・ベイシア越生店(約850m)
*-------------------*
\◎本日ご見学可能◎/
「今から見たい!」「お一人でも安心」お気軽にお問い合わせ♪
住宅ローンのご相談も随時お任せください!