×
| 住所 | 埼玉県入間市大字新久 |
|---|---|
| 交通 | 西武池袋線仏子駅まで 徒歩18分 |
| 間取 | 4LDK |
| 建物 |
109.88㎡ |
| 土地 |
153.87㎡ |
| 築年月 | 1982年08月築 |
2階建て
LDK15畳以上
スーパー徒歩
10分以内
浴室1坪以上
全居室
6畳以上
ケイアイエポックメイキング株式会社坂戸店スタッフおすすめポイント
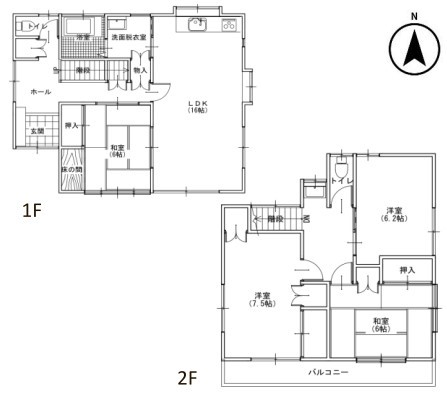
間取

◆間取り|4LDK
外観

◆外観|閑静な住宅地に立地しています!
物件詳細情報
| 物件名 | KEM入間市新久1期 | ||
|---|---|---|---|
| お問い |
10601920 | 価格 | 1,399万円 |
| 物件 |
戸建[中古] | 築年月 | 1982年08月築 |
| 住所 | 埼玉県入間市大字新久地図を見る地図を見る | 最寄駅 | 西武池袋線仏子駅 徒歩18分 |
| 間取 | 4LDK | 構造 / |
木造 / 2階 |
| 建物 |
109.88㎡ |
土地 |
153.87㎡ |
| 建ぺい率 | 60% | 容積率 | 200% |
| 土地 |
所有権 | 用途 |
第一種低層住居専用地域 |
| 建築 |
第848号 | 接道 | 方向:南 間口:10.9m 幅員:6m (公道) |
| 設備 | |||
| 取引 |
売主 | 引渡 |
相談 |
| 物件 |
空室中 | 駐車場 | 屋外1台 |
| 法令上の制限 | |||
| 備考 | *司法書士は売主指定となります。*別途諸費用がかかります。*図面と現況が異なる場合は、現況を優先します。*境界非明示となります。測量等を希望される場合は、買主負担となります。*入間台地区地区計画(A地区)に該当しております。*建築確認番号:第848号(昭和57年1月27日)*表記価格はリフォーム着手前の販売価格になります。リフォーム着手後、販売価格に変動があります。*ハザードマップ非該当です。 |
||
| 情報 |
次回情報 更新予定日 |
||
| 取引条件の 有効期限 |
|||
周辺環境・地図

入間市立新久小学校(950m)

入間市立東金子中学校(1200m)

セブンイレブン入間新久店(200m)

金子病院(250m)

フーズマーケットさえき小谷田店(800m)

Seria入間小谷田店(800m)

ローソン入間小谷田店(1200m)

ドラックセイムス入間仏子店(1400m)

ヤオコー入間仏子店(1800m)
※地図は周辺エリアを表示しております。
※地図上に表示されている周辺環境情報に関しては最新の情報でない場合があり、また実際の所在地と位置が異なる場合がございます。
ローン シミュレーション
結果を見る ▼
※枠内に数値をご入力ください
物件価格(※1)
万円
諸費用
万円
※物件価格の約%で概算諸費用を計算しています。
購入費用総額
万円
自己資金
万円
お借入金額
万円
毎月返済分
万円
賞与返済分(※2)
万円
金利(※3)
%
借入年数
シミュレーションの結果
月々の支払金額
円
賞与月の支払金額
円
※1 金融機関の審査の結果によって借入ができない場合があります。
※2 賞与返済月は年2回(6ヵ月目、12ヵ月目、18ヵ月目...)を仮定しています。
※3 お借入期間、金利が変わらないものと仮定し、適用金利をお約束するものではありません。将来の金利動向により結果が異なる場合があります。
本シミュレーションは概算のためお借り入れの内容によっては実際の計算と異なる場合があります。
※2 賞与返済月は年2回(6ヵ月目、12ヵ月目、18ヵ月目...)を仮定しています。
※3 お借入期間、金利が変わらないものと仮定し、適用金利をお約束するものではありません。将来の金利動向により結果が異なる場合があります。
本シミュレーションは概算のためお借り入れの内容によっては実際の計算と異なる場合があります。
キャンペーン情報
お問い合わせ
この物件を見ている人に おすすめの物件


\◎諸費用コミコミ◎/
◆月々4万円台から♪
◆年収300万円から購入可能
\◎KEIAIのリフォーム◎/
当社が自信を持ってオススメする売主物件です♪
*-------------------*
\◎おすすめポイント◎/
・住環境充実で子育て世代にもおすすめ
・収納完備で片付けはかどる♪
・日当たり良好!明るいお部屋
・閑静な住宅街で安心♪
・家賃より安く憧れの庭付き戸建♪
\◎周辺環境◎/
・新久小学校(約950m)
・東金子中学校(約1200m)
・フーズマーケットさえき(約800m)
*-------------------*
\◎本日ご見学可能◎/
「今から見たい!」「お一人でも安心」お気軽にお問い合わせ♪
住宅ローンのご相談も随時お任せください!