×
| 住所 | 福岡県行橋市南大橋2 |
|---|---|
| 交通 | 日豊線南行橋駅まで 徒歩23分 |
| 間取 | 4LDK |
| 建物 |
117.77㎡ |
| 土地 |
328.35㎡ |
| 築年月 | 1982年06月築 |
2階建て
南向き
浴室乾燥機
駐車場
3台以上
システム
キッチン
小学校徒歩
10分以内
隣の建物との
間隔が広い
ケイアイエポックメイキング株式会社小倉店スタッフおすすめポイント
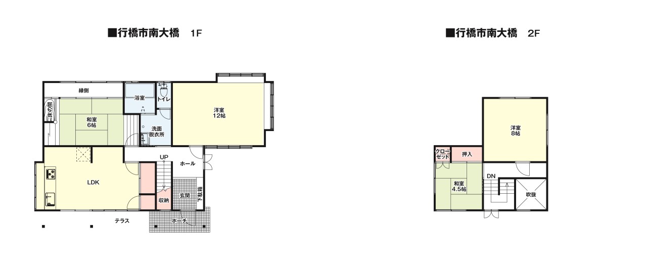
間取

リフォーム後の間取りです
リビング・ダイニング

【リビング】※リフォーム前の写真です(2026年1月撮影)
キッチン

【キッチン】※リフォーム前の写真です(2026年1月撮影)
水回り

【洗面脱衣室】※リフォーム前の写真です(2026年1月撮影)

【浴室】※リフォーム前の写真です(2026年1月撮影)

【トイレ】※リフォーム前の写真です(2026年1月撮影)

【洗面】※リフォーム前の写真です(2026年1月撮影)
その他居室

【1F和室】※リフォーム前の写真です(2026年1月撮影)

【2F和室】※リフォーム前の写真です(2026年1月撮影)

【2F洋室】※リフォーム前の写真です(2026年1月撮影)

【1F洋室】※リフォーム前の写真です(2026年1月撮影)

【1F洋室】※リフォーム前の写真です(2026年1月撮影)
その他内装

【玄関】※リフォーム前の写真です(2026年1月撮影)

【玄関】※リフォーム前の写真です(2026年1月撮影)
外観

【外観】※リフォーム前の写真です(2026年1月撮影)

【外観】※リフォーム前の写真です(2026年1月撮影)

【玄関】※リフォーム前の写真です(2026年1月撮影)
物件詳細情報
| 物件名 | KEM行橋市南大橋1期 | ||
|---|---|---|---|
| お問い |
11302260 | 価格 | 1,699万円 |
| 物件 |
戸建[中古] | 築年月 | 1982年06月築 |
| 住所 | 福岡県行橋市南大橋2丁目地図を見る地図を見る | 最寄駅 | 日豊線南行橋駅 徒歩23分 |
| 間取 | 4LDK | 構造 / |
木造 / 2階 |
| 建物 |
117.77㎡ |
土地 |
328.35㎡ |
| 建ぺい率 | 70% | 容積率 | 200% |
| 土地 |
所有権 | 用途 |
第一種中高層住居専用地域 |
| 建築 |
接道 | 方向:西 幅員:15m (公道) /方向:南 幅員:4.6m (公道) | |
| リフォーム |
■外装:外壁,その他
《破風軒天雨樋塗装等》
(2026年05月)
■内装:キッチン,トイレ,洗面所,給湯器,壁,床,建具,その他 《防蟻工事、クリーニング、スイッチコンセント交換、火災報知器設置など》 (2026年05月完了予定) ■水回り: (2026年05月) |
||
| 設備 | |||
| 取引 |
売主 | 引渡 |
相談 |
| 物件 |
空室中 | 駐車場 | 屋外4台 |
| 法令上の制限 | その他制限事項:建築基準法22条区域、日影規制(2種、4h-2.5h/4m)、道路斜線制限、隣地斜線制限、北側斜線制限、景観計画区域、立地適正化計画(居住誘導区域内、都市機能誘導区域外)、景観法、宅地造成及び特定盛土等規制法、水防法、洪水(0.5-3m)、高潮(3-5m)。 | ||
| 備考 | ※税込とは消費税込みのことです。※別途諸費用がかかります。※司法書士は売主指定となります。※図面と現況が異なる場合は、現況を優先いたします。 |
||
| 情報 |
次回情報 更新予定日 |
||
| 取引条件の 有効期限 |
|||
周辺環境・地図

ファミリーマート福田今元店(600m)

ほっともっと行橋市役所前店(1000m)

行橋市中央公民館(1300m)

行橋市役所(900m)

行橋南小学校(700m)

長部医院(500m)

行橋中学校(1200m)

桜町公園(500m)
※地図は周辺エリアを表示しております。
※地図上に表示されている周辺環境情報に関しては最新の情報でない場合があり、また実際の所在地と位置が異なる場合がございます。
ローン シミュレーション
結果を見る ▼
※枠内に数値をご入力ください
物件価格(※1)
万円
諸費用
万円
※物件価格の約%で概算諸費用を計算しています。
購入費用総額
万円
自己資金
万円
お借入金額
万円
毎月返済分
万円
賞与返済分(※2)
万円
金利(※3)
%
借入年数
シミュレーションの結果
月々の支払金額
円
賞与月の支払金額
円
※1 金融機関の審査の結果によって借入ができない場合があります。
※2 賞与返済月は年2回(6ヵ月目、12ヵ月目、18ヵ月目...)を仮定しています。
※3 お借入期間、金利が変わらないものと仮定し、適用金利をお約束するものではありません。将来の金利動向により結果が異なる場合があります。
本シミュレーションは概算のためお借り入れの内容によっては実際の計算と異なる場合があります。
※2 賞与返済月は年2回(6ヵ月目、12ヵ月目、18ヵ月目...)を仮定しています。
※3 お借入期間、金利が変わらないものと仮定し、適用金利をお約束するものではありません。将来の金利動向により結果が異なる場合があります。
本シミュレーションは概算のためお借り入れの内容によっては実際の計算と異なる場合があります。
キャンペーン情報
お問い合わせ
この物件を見ている人に おすすめの物件



只今リフォーム中♪
2026年5月中旬以降完成予定(^^)/
昭和57年建築の4LDK・2階建て♪
広いお庭とゆとりある間取りのお家です!!
≪おすすめポイント≫
■お庭広々300㎡以上!!
328.35㎡(約99.32坪)
■吹き抜けの明るい玄関♪
■1F洋室12帖!!
≪リフォーム内容≫
■キッチン交換
■洗面化粧台交換
■トイレ交換
■給湯器交換
■一部建具交換・新設
■天井・壁クロス張替え
■フローリング・クッションフロア上張り
■防蟻工事
■クリーニング
■スイッチ・コンセント交換
■外壁塗装
■破風・軒天・雨樋・雨戸・戸袋塗装
■内部木部塗装
■車庫拡張
■火災報知器設置
■残置撤去
即日内覧可能です♪
詳しくは、「小倉店」までお気軽にお問い合わせください!!