| 住所 | 広島県安芸郡熊野町呉地5 |
|---|---|
| 交通 | 呉線矢野駅まで車8km |
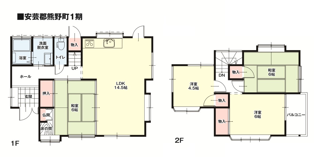
| 間取 | 4LDK |
| 建物 |
87.77㎡ |
| 土地 |
309.93㎡ |
| 築年月 | 1989年03月築 |
駐車場
2台可
2階建て
浴室乾燥機
オール電化
IHクッキング
ヒーター
ケイアイエポックメイキング株式会社広島店スタッフおすすめポイント
間取

※リフォーム後の間取りです。
リビング・ダイニング

14.5帖の広々とした開放感のあるリビング♪※リフォーム前の写真です。(2025.9月撮影)

14.5帖のLDK♪勝手口が付いているのでゴミ出しの際に便利です♪※リフォーム前の写真です。(2025.9月撮影)

リビング ※リフォーム中の写真です(2026.1月撮影)

リビング ※リフォーム中の写真です(2026.1月撮影)

リビング ※リフォーム中の写真です(2026.1月撮影)
キッチン

綺麗なキッチン♪シンクもピカピカです♪※リフォーム前の写真です。(2025.9月撮影)

IHや食洗機が付いた使いやすい綺麗なキッチン♪※リフォーム前の写真です。(2025.9月撮影)
水回り

大きな窓があるので換気もしやすい洗面脱衣室♪※リフォーム前の写真です。(2025.9月撮影)

足を伸ばしてゆったりと湯船につかることができます♪※リフォーム前の写真です。(2025.9月撮影)

ウォシュレット付きの1Fトイレ♪※リフォーム前の写真です。(2025.9月撮影)
その他居室

日用品から季節のものまで家族みんなの荷物がしまえる広い収納スペース!!※現況販売となります(2025.9月撮影)

3方向から光が差し込み明るく過ごしやすい2階居室♪※リフォーム前の写真です。(2025.9月撮影)

各居室に収納スペース完備♪お部屋をスッキリ保てます♪※リフォーム前の写真です。(2025.9月撮影)

4LDKなので、それぞれのプライベートな空間も保てます♪※リフォーム前の写真です。(2025.9月撮影)

ゴロゴロと寝そべることができる2階の和室♪※リフォーム前の写真です。(2025.9月撮影)

明るく過ごしやすい2階の居室スペース♪※リフォーム前の写真です。(2025.9月撮影)

足を伸ばして寛げる6帖の和室空間♪※リフォーム前の写真です。(2025.9月撮影)

2F和室→洋室へ ※リフォーム中の写真です(2026.1月撮影)
その他内装

明るく開放感のある玄関♪靴も沢山収納できます♪※リフォーム前の写真です。(2025.9月撮影)
外観

※リフォーム前の写真です。(2025.9月撮影)

※リフォーム前の写真です。(2025.9月撮影)

※現況販売となります(2025.9月撮影)

※リフォーム前の写真です。(2025.9月撮影)

※リフォーム前の写真です。(2025.9月撮影)

※リフォーム前の写真です。(2025.9月撮影)

※リフォーム前の写真です。(2025.9月撮影)

※リフォーム前の写真です。(2025.9月撮影)

※リフォーム前の写真です。(2025.9月撮影)

※リフォーム前の写真です。(2025.9月撮影)
物件詳細情報
| 物件名 | KEM安芸郡熊野町1期 | ||
|---|---|---|---|
| お問い |
11601100 | 価格 | 1,699万円 |
| 物件 |
戸建[中古] | 築年月 | 1989年03月築 |
| 住所 | 広島県安芸郡熊野町呉地5丁目地図を見る地図を見る | 最寄駅 | 呉線矢野駅まで車8km |
| 間取 | 4LDK | 構造 / |
木造 / 2階 |
| 建物 |
87.77㎡ |
土地 |
309.93㎡ |
| 建ぺい率 | 50% | 容積率 | 100% |
| 土地 |
所有権 | 用途 |
第一種低層住居専用地域 |
| 建築 |
接道 | 方向:南東 幅員:6m (公道) | |
| リフォーム |
■外装:外壁
(2026年03月)
■内装:キッチン,浴室,トイレ,洗面所,給湯器,壁,床,建具,その他 《畳表替え、網戸張替、スイッチ・コンセント・シーリング交換、防蟻処理など》 (2026年03月完了予定) ■水回り: (2026年03月) |
||
| 設備 | |||
| 取引 |
売主 | 引渡 |
相談 |
| 物件 |
空室中 | 駐車場 | 屋外2台 |
| 法令上の制限 | その他制限事項:建築基準法22条区域、日影規制、高さ制限10m、道路斜線制限、北側斜線制限、広島県景観条例、宅地造成及び特定盛土等規制法、都市再生特別措置法、がけ条例、土砂災害警戒区域内 | ||
| 備考 | ※税込とは消費税込みのことです ※駐車は車種に制限がある場合がございます ※別途諸費用がかかります ※司法書士は売主指定となります ※図面と現況が異なる場合は現況を優先いたします |
||
| 情報 |
次回情報 更新予定日 |
||
| 取引条件の 有効期限 |
|||
周辺環境・地図




※地図は周辺エリアを表示しております。
※地図上に表示されている周辺環境情報に関しては最新の情報でない場合があり、また実際の所在地と位置が異なる場合がございます。
ローン シミュレーション
※枠内に数値をご入力ください
物件価格(※1)
諸費用
購入費用総額
自己資金
お借入金額
毎月返済分
賞与返済分(※2)
金利(※3)
借入年数
シミュレーションの結果
月々の支払金額
賞与月の支払金額
※2 賞与返済月は年2回(6ヵ月目、12ヵ月目、18ヵ月目...)を仮定しています。
※3 お借入期間、金利が変わらないものと仮定し、適用金利をお約束するものではありません。将来の金利動向により結果が異なる場合があります。
本シミュレーションは概算のためお借り入れの内容によっては実際の計算と異なる場合があります。
キャンペーン情報
お問い合わせ
この物件を見ている人に おすすめの物件



只今リフォーム中!!
2026年3月完工予定(^^)/
平成1年建築の4LDK2階建て♪
お洒落な外観のお家です(^^♪
≪おすすめポイント≫
■駐車スペース2台分確保♪
■静かで穏やかな住環境!!
■IHクッキングヒーターや食洗機の付いた使いやすいキッチン!!
現地見学受付中!!
是非お気軽にお問い合わせください(^^)/
マイホームに関するお悩みは、ケイアイエポックメイキング(株)「広島店」にお任せください♪