×
          
          
          | 住所 | 群馬県伊勢崎市山王町 | 
|---|---|
| 交通 | 東武伊勢崎線新伊勢崎駅まで 徒歩37分 | 
| 間取 | 5DK | 
| 建物 | 96.47㎡ | 
| 土地 | 239.19㎡ | 
| 築年月 | 1990年07月築 | 
 2階建て 2階建て
 スーパー徒歩 スーパー徒歩
 10分以内
 小学校徒歩 小学校徒歩
 10分以内
ケイアイエポックメイキング株式会社熊谷店スタッフおすすめポイント
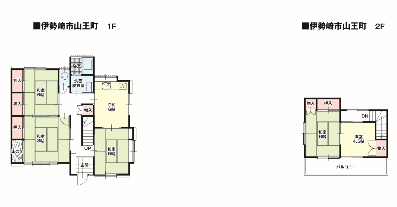
間取

【間取図】
リビング・ダイニング

【ダイニング】掃き出し窓があるので明るいです♪
キッチン

【キッチン】並んでお料理ができます♪
水回り

【浴室】窓がありますので、気軽に換気ができます♪

【洗面脱衣所】
その他居室

【和室】ダイニングと繋がっております♪

【和室】優しい光の入るお部屋です♪

【和室】大きな窓からたくさん自然光が入ります。

【和室】襖を開けておけば、14帖のお部屋としてお使いいただけます♪

【洋室】光がたっぷり入るお部屋です♪

【洋室】2階の両方のお部屋からバルコニーに出入りできます。

【和室】2階の和室にも収納はたっぷりございます。
外観

\本日見学可能/お気軽にお問い合わせください♪

【外観】南側が私道なので、日当たり良好です◎

リフォームの相談も受け付けております♪

スーパーやコンビニまで徒歩圏内です♪

【外観】有効面積は約71坪♪
物件詳細情報
| 物件名 | KEM伊勢崎市山王町1期 | ||
|---|---|---|---|
| お問い | 11801040 | 価格 | 1,099万円 | 
| 物件 | 戸建[中古] | 築年月 | 1990年07月築 | 
| 住所 | 群馬県伊勢崎市山王町地図を見る地図を見る | 最寄駅 | 東武伊勢崎線新伊勢崎駅 徒歩37分 | 
| 間取 | 5DK | 構造 / | 木造 / 2階 | 
| 建物 | 96.47㎡ | 土地 | 239.19㎡ | 
| 建ぺい率 | 50% | 容積率 | 100% | 
| 土地 | 所有権 | 用途 | 第二種低層住居専用地域 | 
| 建築 | 接道 | 方向:東 幅員:6m (公道) /私道負担面積:130㎡ (私道負担割合:1/2) | |
| 設備 | |||
| 取引 | 売主 | 引渡 | 相談 | 
| 物件 | 空室中 | 駐車場 | - | 
| 法令上の制限 | 宅地造成工事規制区域:有/日影制限:有/その他制限事項:建築基準法22条区域、道路斜線制限、北側斜線制限、伊勢崎市景観条例、立地適正化計画(居住誘導区域内、都市機能誘導区域外) | ||
| 備考 | |||
| 情報 | 次回情報 更新予定日 | ||
| 取引条件の 有効期限 | |||
周辺環境・地図
※地図は周辺エリアを表示しております。
※地図上に表示されている周辺環境情報に関しては最新の情報でない場合があり、また実際の所在地と位置が異なる場合がございます。
ローン
              結果を見る ▼
              ※枠内に数値をご入力ください
物件価格(※1)
万円
					
                    諸費用
万円
                      ※物件価格の約%で概算諸費用を計算しています。
                    購入費用総額
万円
                    自己資金
万円
                    お借入金額
万円
                    毎月返済分
万円
					
                      賞与返済分(※2)
万円
                      金利(※3)
% 
					
                      借入年数
シミュレーションの結果
月々の支払金額
円
                      賞与月の支払金額
円
						※1 金融機関の審査の結果によって借入ができない場合があります。
※2 賞与返済月は年2回(6ヵ月目、12ヵ月目、18ヵ月目...)を仮定しています。
※3 お借入期間、金利が変わらないものと仮定し、適用金利をお約束するものではありません。将来の金利動向により結果が異なる場合があります。
本シミュレーションは概算のためお借り入れの内容によっては実際の計算と異なる場合があります。
                    ※2 賞与返済月は年2回(6ヵ月目、12ヵ月目、18ヵ月目...)を仮定しています。
※3 お借入期間、金利が変わらないものと仮定し、適用金利をお約束するものではありません。将来の金利動向により結果が異なる場合があります。
本シミュレーションは概算のためお借り入れの内容によっては実際の計算と異なる場合があります。
キャンペーン情報
お問い合わせ
この物件を見ている人に
              


\本日見学OK/現況販売中!コンビニまで徒歩約5分!
▽おすすめpoint☆ミ
・小学校まで徒歩約8分で毎日の通学も安心!
・土地の有効面積は71坪以上!
・南側は道路のため日当たり良好!
▽周辺環境☆ミ
・広瀬小学校 徒歩約8分
・第二中学校 徒歩約16分
・オトナリマート伊勢崎ひろせ店 徒歩約9分
・ファミリーマート伊勢崎山王店 徒歩約5分
□■住宅ローン無料相談■□
・年収が低い、勤続年数が短い方
・車、カード類等のローンがある方
・過去に支払いの遅れがあった方
・シングルマザー、外国籍の方 等々
住宅ローン詳しい経験豊富なスタッフが、お客様にピッタリなご提案をさせていただきます!