| 住所 | 熊本県合志市栄 |
|---|---|
| 交通 | 熊電御代志駅まで 徒歩42分 |
| 間取 | 6DK |
| 建物 |
148.27㎡ |
| 土地 |
198.4㎡ |
| 築年月 | 1984年06月築 |
2階建て
浴室乾燥機
システム
キッチン
ケイアイエポックメイキング株式会社熊本店スタッフおすすめポイント
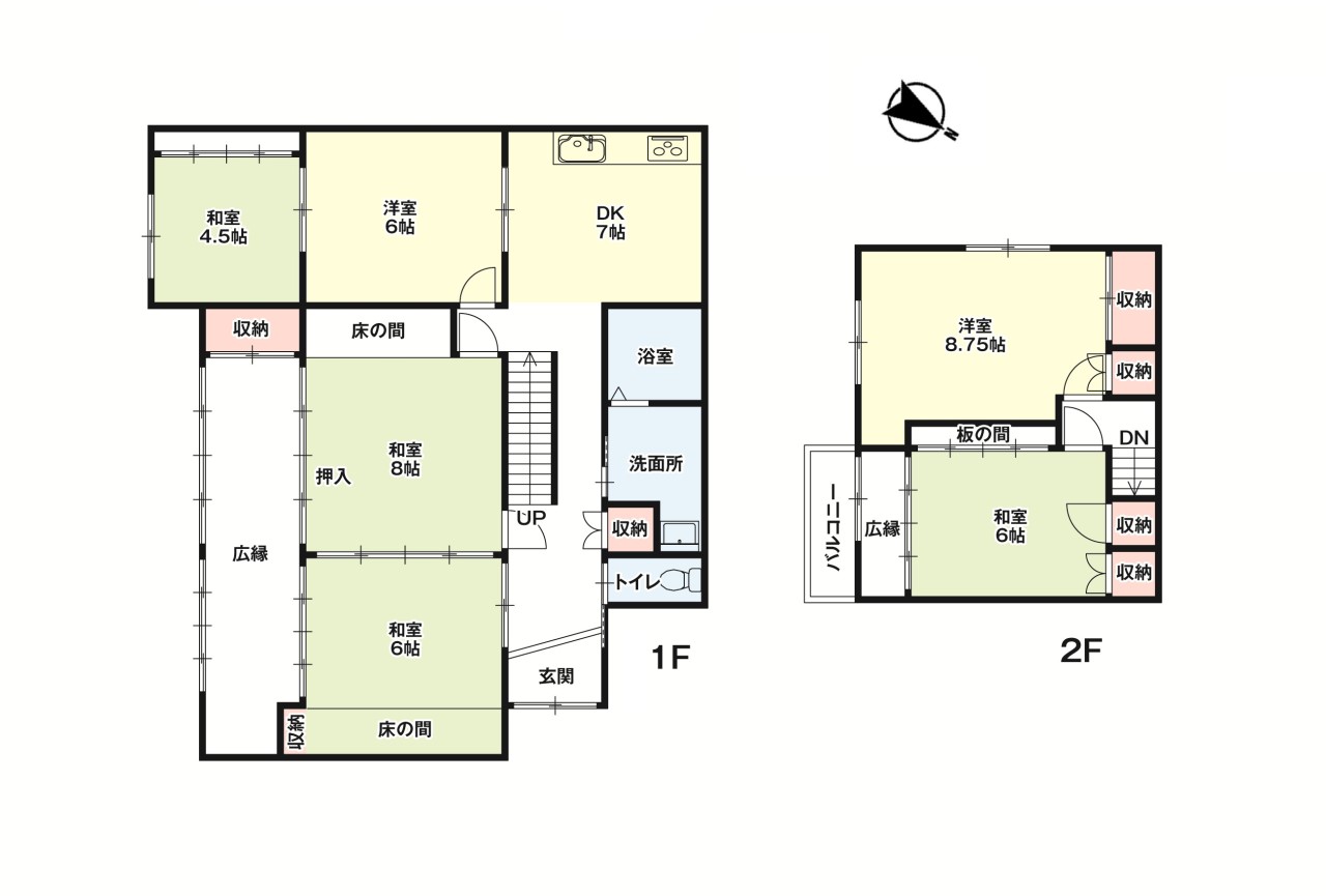
間取

リフォーム後間取り図
リビング・ダイニング

【ダイニングキッチン】7.7帖のダイニングキッチン(2026年3月撮影)※リフォーム前写真
キッチン

【ダイニングキッチン】キッチンは交換予定♪(2026年3月撮影)※リフォーム前写真
水回り

【洗面所】新しいものに交換予定♪(2026年3月撮影)※リフォーム前写真

【浴室】リフォーム予定です♪(2026年3月撮影)※リフォーム前写真

【トイレ】リフォーム予定です♪(2026年3月撮影)※リフォーム前写真
その他居室

【1F7.7帖洋室】ダイニングキッチンの続き間になっているのでリビングとしても使えます♪(2026年3月撮影)※リフォーム前写真

【1F7.7帖洋室】リビングとしても使えます♪(2026年3月撮影)※リフォーム前写真

【1F4.5帖和室】お昼寝や休憩スペースにピッタリなお部屋です♪(2026年3月撮影)※リフォーム前写真

【1F8帖和室→洋室】リフォームで洋室変更予定♪(2026年3月撮影)※リフォーム前写真

【1F6帖和室】広縁のある日当たりのよい和室です(2026年3月撮影)※リフォーム前写真

【2F約8.7帖洋室】2面採光で日当たり良好!(2026年3月撮影)※リフォーム前写真

【2F約8.7帖洋室】収納がついています(2026年3月撮影)※リフォーム前写真

【2F6帖和室】和室でしか感じることのできない趣のある空間です(2026年3月撮影)※リフォーム前写真

【2F縁側】天気の良い日には日向ぼっこが楽しめます♪(2026年3月撮影)※リフォーム前写真

【1F広縁】日当たりが良いのでお洗濯ものを干したり日向ぼっこをするのにピッタリ♪(2026年3月撮影)※リフォーム前写真
外観

【外観】\本日見学可能/お気軽にお問い合わせください♪(2026年3月撮影)※リフォーム前写真

【外観】(2026年3月撮影)※リフォーム前写真
物件詳細情報
| 物件名 | KEM合志市栄1期 | ||
|---|---|---|---|
| お問い |
12101220 | 価格 | 1,999万円 |
| 物件 |
戸建[中古] | 築年月 | 1984年06月築 |
| 住所 | 熊本県合志市栄地図を見る地図を見る | 最寄駅 | 熊電御代志駅 徒歩42分 |
| 間取 | 6DK | 構造 / |
木造 / 2階 |
| 建物 |
148.27㎡ |
土地 |
198.4㎡ |
| 建ぺい率 | 70% | 容積率 | 200% |
| 土地 |
所有権 | 用途 |
無指定 |
| 建築 |
接道 | 方向:北東 幅員:6m (公道) | |
| リフォーム |
■外装:外壁,その他
《基礎塗装、砂利敷き》
(2026年07月)
■内装:キッチン,浴室,トイレ,洗面所,給湯器,給排水管,壁,床,その他 《天井、コンセント新設、襖障子張替、畳表替え、シリンダー・スイッチ・コンセント・ポーチライト、交換》 (2026年07月完了予定) |
||
| 設備 | |||
| 取引 |
売主 | 引渡 |
相談 |
| 物件 |
空室中 | 駐車場 | カースペース 1台 |
| 法令上の制限 | その他制限事項:※集落内開発制度区域内(2階建てまで・高さ10m以下・建ぺい率70%・容積率200%)※道路斜線制限※隣地斜線制限※熊本県景観条例※宅地造成及び特定盛土等規制法※航空法(円錐表面) | ||
| 備考 | ※別途諸費用がかかります。※その他リフォーム:網戸張替、ドアホン交換、防蟻工事、1F和室→洋室変更、点検口、玄関壁タイル、一部壁解体・新設、階段手摺取付、棚解体、一部建具枠交換、火災報知器設置、下駄箱 |
||
| 情報 |
次回情報 更新予定日 |
||
| 取引条件の 有効期限 |
|||
周辺環境・地図








※地図は周辺エリアを表示しております。
※地図上に表示されている周辺環境情報に関しては最新の情報でない場合があり、また実際の所在地と位置が異なる場合がございます。
ローン シミュレーション
※枠内に数値をご入力ください
物件価格(※1)
諸費用
購入費用総額
自己資金
お借入金額
毎月返済分
賞与返済分(※2)
金利(※3)
借入年数
シミュレーションの結果
月々の支払金額
賞与月の支払金額
※2 賞与返済月は年2回(6ヵ月目、12ヵ月目、18ヵ月目...)を仮定しています。
※3 お借入期間、金利が変わらないものと仮定し、適用金利をお約束するものではありません。将来の金利動向により結果が異なる場合があります。
本シミュレーションは概算のためお借り入れの内容によっては実際の計算と異なる場合があります。
キャンペーン情報
お問い合わせ
この物件を見ている人に おすすめの物件


《即日対応可能》日当たりの良い広縁♪
\\6DKと部屋数の多いゆとりある間取り//
おうち探しは、
『ケイアイエポックメイキング(株)熊本店』へ♪
■気軽に相談ができる■
お家探しを始め、住宅ローンや今後のライフプランなど
一緒に考えていきましょう♪
す!
■住宅ローン無料相談会■
・年収が低い、勤続年数が短い方
・車、バイクのローンがある方
・シングルマザー、ひとり親
・外国籍の方 等々
住宅ローン詳しい経験豊富なスタッフが、
お客様にピッタリなご提案をさせていただきます!
お気軽にお問い合わせください♪